ГОСТ Р 59631-2021 Конструкции несущие базовые третьего уровня для стационарных радиоэлектронных средств. Конструкция и размеры
ГОСТ Р
Скачать ГОСТ в PDF или DOC бесплатно
Основная информация
Обозначение:
ГОСТ Р 59631-2021
Статус:
Действует
Тип:
ГОСТ Р
Название русское:
Конструкции несущие базовые третьего уровня для стационарных радиоэлектронных средств. Конструкция и размеры
Название английское:
Basic carrying structures of the third level for stationary radioelectronic means. Design and dimensions
Даты и сроки
Дата издания:
09-17-21
Дата введения в действие:
12-01-21
Дата завершения срока действия:
-
Применение и описание
Область и условия применения:
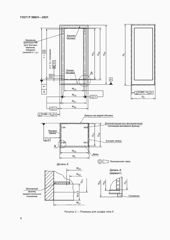
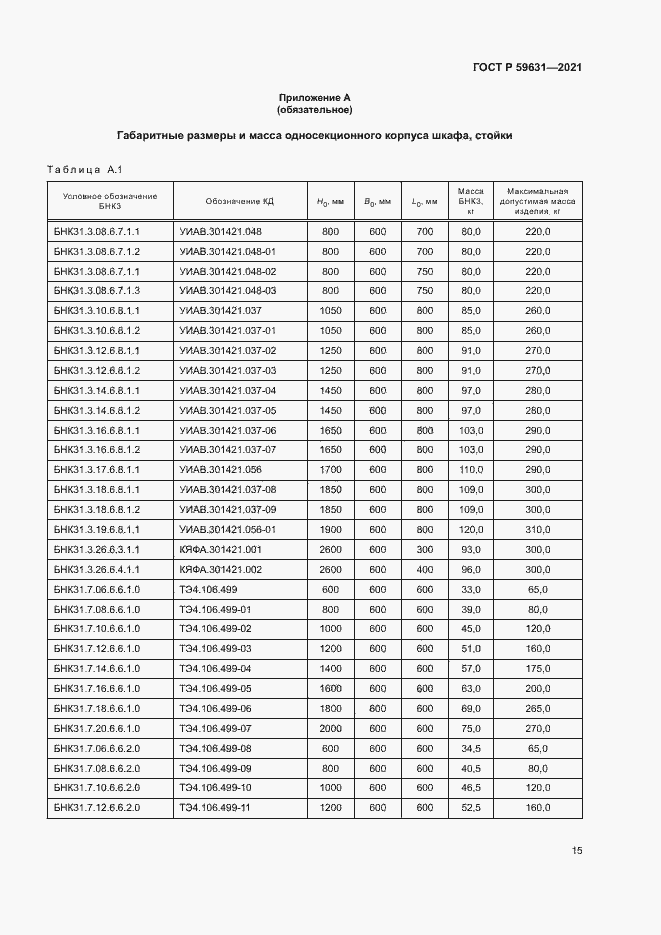
Настоящий стандарт распространяется на базовые несущие конструкции третьего уровня для стационарных радиоэлектронных средств и устанавливает их конструкцию и основные размеры
Связи и замены
Заменяющий:
-
Описание стандарта
ГОСТ Р 59631-2021 Конструкции несущие базовые третьего уровня для стационарных радиоэлектронных средств. Конструкция и размеры
Страницы стандарта

























