ГОСТ 18471-83 Тракт передачи изображения вещательного телевидения. Звенья тракта и измерительные сигналы
ГОСТ
Скачать ГОСТ в PDF или DOC бесплатно
Основная информация
Обозначение:
ГОСТ 18471-83
Статус:
Действует
Тип:
ГОСТ
Название русское:
Тракт передачи изображения вещательного телевидения. Звенья тракта и измерительные сигналы
Название английское:
Television video channel of broadcast television. Channel parts and measuring signals
Даты и сроки
Дата издания:
04-01-01
Дата введения в действие:
01-01-85
Дата завершения срока действия:
-
Применение и описание
Область и условия применения:
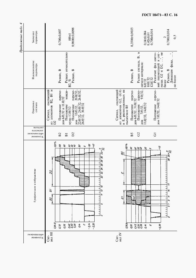
Настоящий стандарт распространяется на тракт передачи изображения вещательного телевидения и устанавливает: границы звеньев тракта; измерительные сигналы для определения основных показателей качества тракта передачи изображения аналогового вещательного телевидения и их основные параметры
Связи и замены
Заменяющий:
-
Взамен:
ГОСТ 18471-73
Изменения и переиздания
Список изменений:
№1 от (рег. ) «Срок действия продлен» №2 от (рег. ) «Срок действия продлен»
Описание стандарта
ГОСТ 18471-83 Тракт передачи изображения вещательного телевидения. Звенья тракта и измерительные сигналы
Страницы стандарта































