ГОСТ Р 51294.5-2000 Автоматическая идентификация. Международная уникальная идентификация транспортируемых единиц. Порядок регистрации
ГОСТ Р
Скачать ГОСТ в PDF или DOC бесплатно
Основная информация
Обозначение:
ГОСТ Р 51294.5-2000
Статус:
Отменен
Тип:
ГОСТ Р
Название русское:
Автоматическая идентификация. Международная уникальная идентификация транспортируемых единиц. Порядок регистрации
Название английское:
Automatic identification. International unique identification of transport units. Registration procedures
Даты и сроки
Дата издания:
10-25-00
Дата введения в действие:
01-01-01
Дата завершения срока действия:
01-01-09
Применение и описание
Область и условия применения:
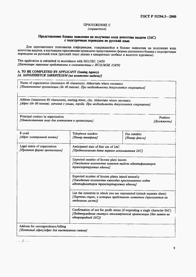
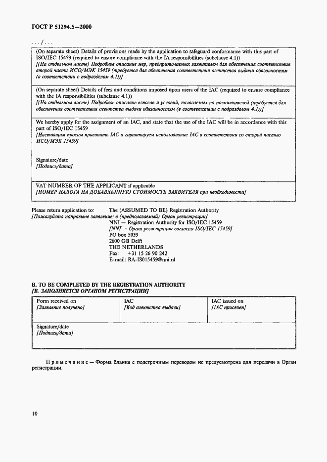
Настоящий стандарт устанавливает требования к процедурам ведения незначащего кода идентификаторов транспортируемых единиц, а также обязанности Органа регистрации и агентств выдачи
Связи и замены
Заменяющий:
-
Изменения и переиздания
Список изменений:
№0 от (рег. ) «Текстовое изменение; Изменено заглавие»
Описание стандарта
ГОСТ Р 51294.5-2000 Автоматическая идентификация. Международная уникальная идентификация транспортируемых единиц. Порядок регистрации
Страницы стандарта















