ГОСТ Р 41.52-2001 Единообразные предписания, касающиеся конструкции транспортных средств общего пользования малой вместимости
ГОСТ Р
Скачать ГОСТ в PDF или DOC бесплатно
Основная информация
Обозначение:
ГОСТ Р 41.52-2001
Статус:
Заменен
Тип:
ГОСТ Р
Название русское:
Единообразные предписания, касающиеся конструкции транспортных средств общего пользования малой вместимости
Название английское:
Uniform provisions concerning the construction of small capacity public services vehicles
Даты и сроки
Дата издания:
01-16-02
Дата введения в действие:
01-01-02
Дата завершения срока действия:
01-01-07
Применение и описание
Область и условия применения:
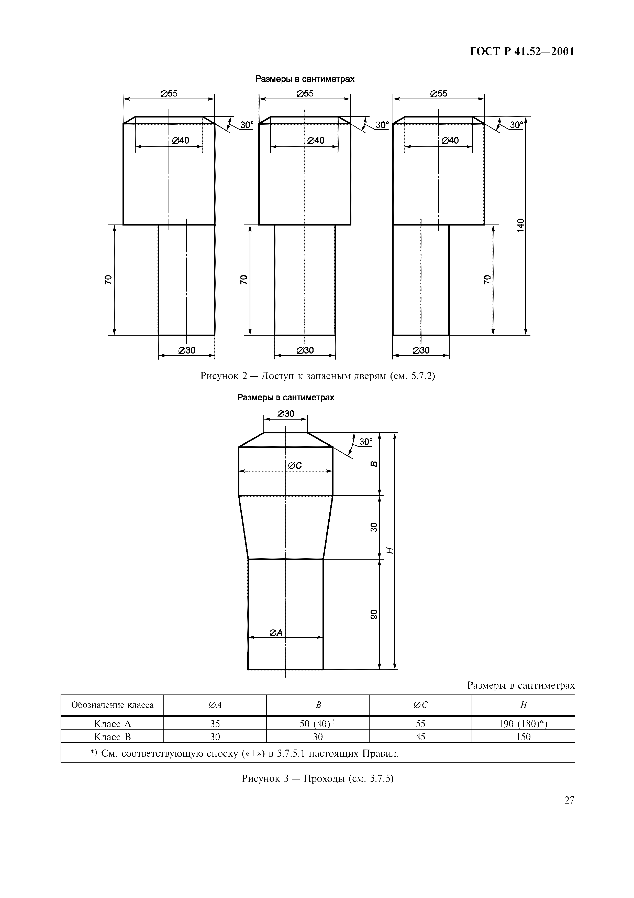
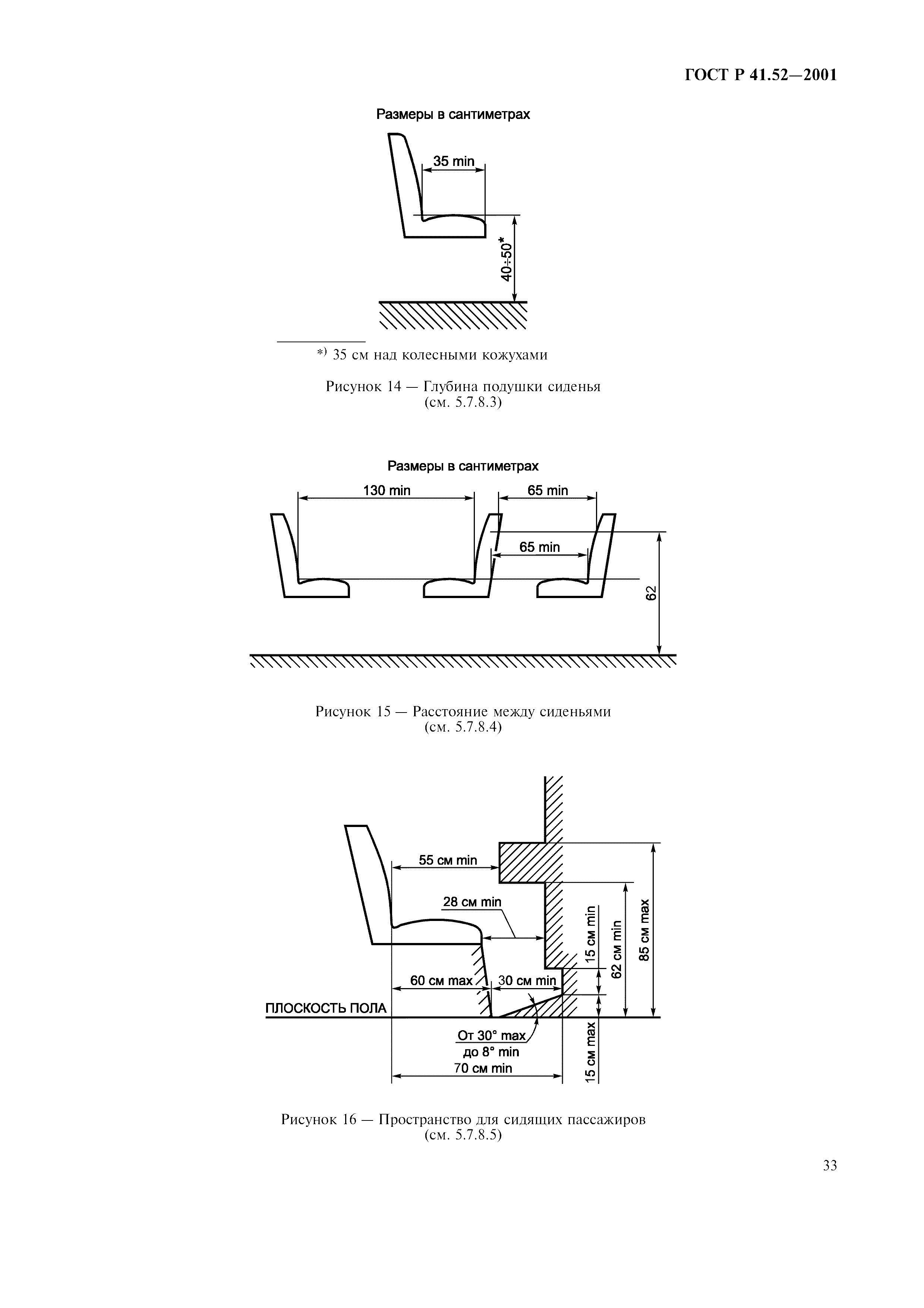
Настоящие Правила распространяются на одноэтажные транспортные средства категорий М2 и М3 с жесткой базой, сконструированные и построенные для перевозки людей, вместимостью не более 22 сидящих или стоящих пассажиров, исключая водителя
Связи и замены
Заменяющий:
ГОСТ Р 41.52-2005
Описание стандарта
ГОСТ Р 41.52-2001 Единообразные предписания, касающиеся конструкции транспортных средств общего пользования малой вместимости
Страницы стандарта








































