ГОСТ Р 55941-2014 Рельсы трамвайные желобчатые. Технические условия
ГОСТ Р
Скачать ГОСТ в PDF или DOC бесплатно
Основная информация
Обозначение:
ГОСТ Р 55941-2014
Статус:
Действует
Тип:
ГОСТ Р
Название русское:
Рельсы трамвайные желобчатые. Технические условия
Название английское:
Grooved rails. Specifications
Даты и сроки
Дата издания:
11-29-19
Дата введения в действие:
01-01-15
Дата завершения срока действия:
-
Применение и описание
Область и условия применения:
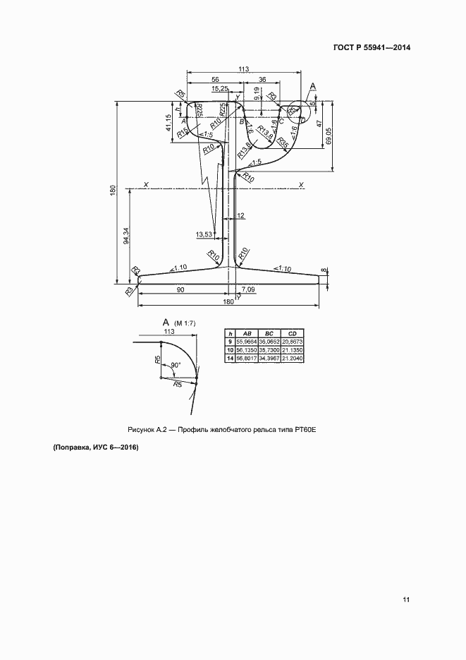
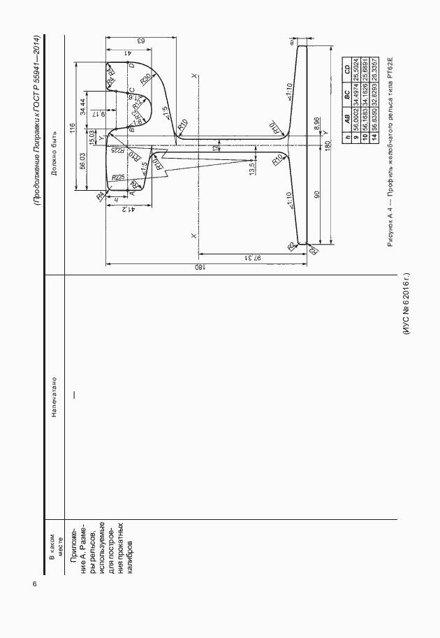
Настоящий стандарт распространяется на трамвайные желобчатые рельсы (далее - рельсы), предназначенные для путей городского электрического транспорта
Связи и замены
Заменяющий:
-
Изменения и переиздания
Список изменений:
№0 от (рег. ) «Дата введения перенесена»
Описание стандарта
ГОСТ Р 55941-2014 Рельсы трамвайные желобчатые. Технические условия
Страницы стандарта



















Приложение №1: Поправка к ГОСТ Р 55941-2014 Обозначение: Поправка к ГОСТ Р 55941-2014 Дата введения в действие: 18.02.2016

Приложение №1: Поправка к ГОСТ Р 55941-2014 Обозначение: Поправка к ГОСТ Р 55941-2014 Дата введения в действие: 18.02.2016

Приложение №1: Поправка к ГОСТ Р 55941-2014 Обозначение: Поправка к ГОСТ Р 55941-2014 Дата введения в действие: 18.02.2016

Приложение №1: Поправка к ГОСТ Р 55941-2014 Обозначение: Поправка к ГОСТ Р 55941-2014 Дата введения в действие: 18.02.2016

Приложение №1: Поправка к ГОСТ Р 55941-2014 Обозначение: Поправка к ГОСТ Р 55941-2014 Дата введения в действие: 18.02.2016

Приложение №1: Поправка к ГОСТ Р 55941-2014 Обозначение: Поправка к ГОСТ Р 55941-2014 Дата введения в действие: 18.02.2016
