ГОСТ Р ИСО 15370-2014 Суда и морские технологии. Низкорасположенное освещение (НРО) на пассажирских судах. Расположение
ГОСТ Р ИСО
Скачать ГОСТ в PDF или DOC бесплатно
Основная информация
Обозначение:
ГОСТ Р ИСО 15370-2014
Статус:
Действует
Тип:
ГОСТ Р ИСО
Название русское:
Суда и морские технологии. Низкорасположенное освещение (НРО) на пассажирских судах. Расположение
Название английское:
Ships and marine technology. Low-locating lighting (LLL) on passenger ships. Arrangement
Даты и сроки
Дата издания:
07-30-14
Дата введения в действие:
09-01-14
Дата завершения срока действия:
-
Применение и описание
Область и условия применения:
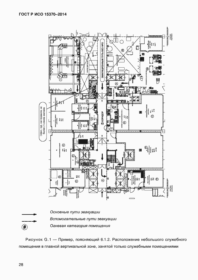
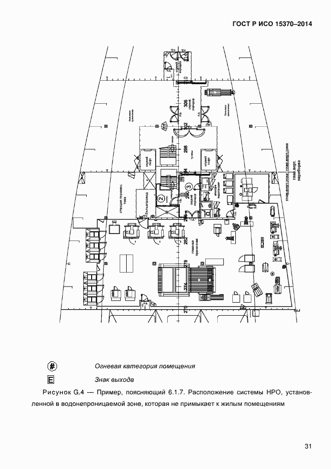
Настоящий стандарт устанавливает требования к установке, проверке и техническому обслуживанию систем световых эвакуационных указателей, согласно Главе II-2, Правило 13.3.2.5.1 Международной конвенции по охране человеческой жизни на море 1974 (СОЛАС-74) с поправками 2000 года, согласно Международному кодексу по системам противопожарной безопасности, принятому Резолюцией ИМО MSC.98(73), а также согласно Резолюции ИМО А.752(18) «Руководство по оценке, испытаниям и применению низкорасположенного освещения на пассажирских судах»
Связи и замены
Заменяющий:
-
Описание стандарта
ГОСТ Р ИСО 15370-2014 Суда и морские технологии. Низкорасположенное освещение (НРО) на пассажирских судах. Расположение
Страницы стандарта











































