ГОСТ Р 70616-2022 Планки для надписей и маркировки судовых электрораспределительных устройств. Типы, основные размеры и технические требования
ГОСТ Р
Скачать ГОСТ в PDF или DOC бесплатно
Основная информация
Обозначение:
ГОСТ Р 70616-2022
Статус:
Действует
Тип:
ГОСТ Р
Название русское:
Планки для надписей и маркировки судовых электрораспределительных устройств. Типы, основные размеры и технические требования
Название английское:
Label strips and marking of ship electrical switchgear. Types, main dimensions and technical requirements
Даты и сроки
Дата издания:
01-25-23
Дата введения в действие:
06-01-23
Дата завершения срока действия:
-
Применение и описание
Область и условия применения:
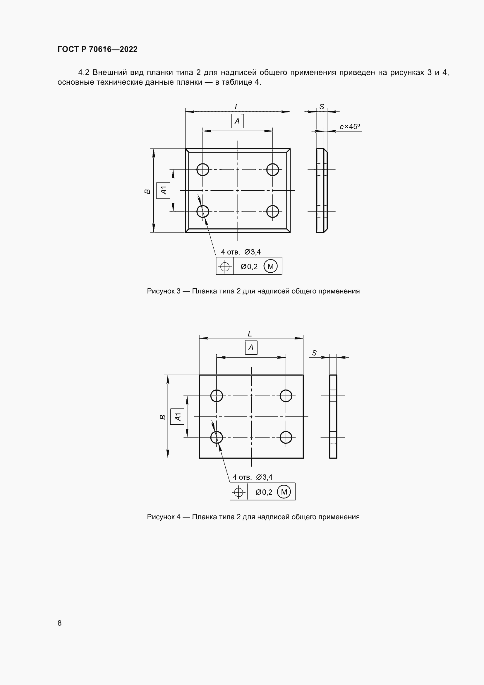
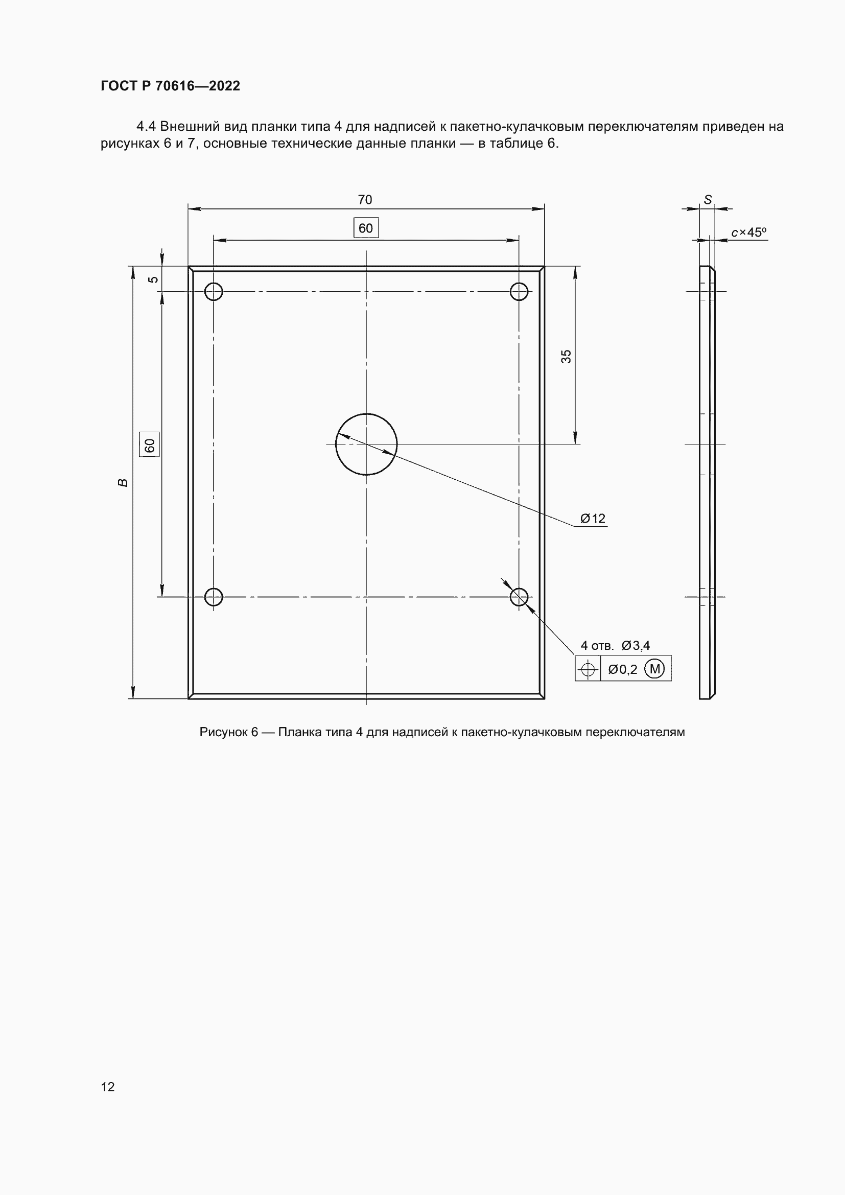
Настоящий стандарт устанавливает типы, основные размеры и технические требования на изготовление и крепление планок для надписей и маркировки электрораспределительных устройств, электрооборудования и электроустановочной аппаратуры, применяемых на кораблях, судах, плавсредствах и береговых сооружениях
Связи и замены
Заменяющий:
-
Описание стандарта
ГОСТ Р 70616-2022 Планки для надписей и маркировки судовых электрораспределительных устройств. Типы, основные размеры и технические требования
Страницы стандарта











































