ГОСТы >
49.080 Авиационно-космические гидравлические и пневматические системы и их компоненты >
ГОСТ Р 56182-2014
ГОСТ Р 56182-2014 Авиационная техника. Устройства уплотнительные с фторопластовыми манжетами, резиновыми и упругими кольцами для поршней. Конструкция, технические требования
ГОСТ Р
Скачать ГОСТ в PDF или DOC бесплатно
Основная информация
Обозначение:
ГОСТ Р 56182-2014
Статус:
Действует
Тип:
ГОСТ Р
Название русское:
Авиационная техника. Устройства уплотнительные с фторопластовыми манжетами, резиновыми и упругими кольцами для поршней. Конструкция, технические требования
Название английское:
Aircraft. Sealing devices with teflon cuffs, rubber and elastic rings for pistons. Design, technical requirements
Даты и сроки
Дата издания:
11-27-19
Дата введения в действие:
01-01-15
Дата завершения срока действия:
-
Применение и описание
Область и условия применения:
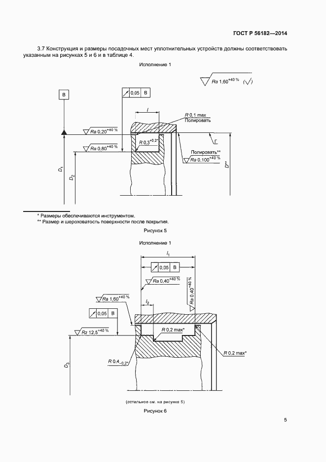
Настоящий стандарт распространяется на уплотнительные устройства с фторопластовыми манжетами, резиновыми кольцами круглого сечения и упругими кольцами для поршней с возвратно-поступательным движением, предназначенные для применения в рулевых приводах гидравлических систем управления самолетов и вертолетов. Стандарт устанавливает два исполнения уплотнительных устройств, предназначенных для различных условий эксплуатации
Связи и замены
Заменяющий:
-
Описание стандарта
ГОСТ Р 56182-2014 Авиационная техника. Устройства уплотнительные с фторопластовыми манжетами, резиновыми и упругими кольцами для поршней. Конструкция, технические требования
Страницы стандарта














