ГОСТ 16553-88 Краны-штабелеры. Типы
ГОСТ
Скачать ГОСТ в PDF или DOC бесплатно
Основная информация
Обозначение:
ГОСТ 16553-88
Статус:
Действует
Тип:
ГОСТ
Название русское:
Краны-штабелеры. Типы
Название английское:
Stacker cranes. Types
Даты и сроки
Дата издания:
04-01-08
Дата введения в действие:
01-01-89
Дата завершения срока действия:
-
Применение и описание
Область и условия применения:
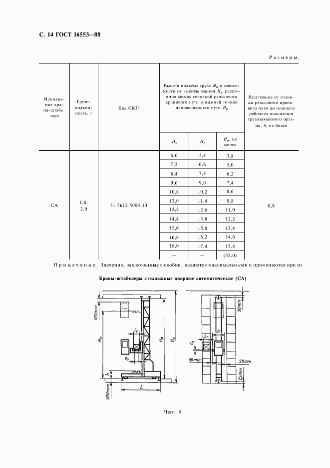
Настоящий стандарт распространяется на электрические опорные мостовые и стеллажные краны-штабелеры грузоподъемностью от 0,16 до 12,5 т, управляемые с пола, из кабины и автоматически, предназначенные для работы в непожароопасных зонах, а также пожароопасных зонах категории П—IIа согласно "Правилам устройства электроустановок". Стандарт не распространяется на краны-штабелеры специальные, в том числе для автоматизированных транспортно-складских систем, на краны-штабелеры, предназначенные для переработки химически активных и ядовитых веществ, а также заготовок, разогретых до температуры свыше 80 град. С
Связи и замены
Заменяющий:
-
Взамен:
ГОСТ 16553-82
Изменения и переиздания
Список изменений:
№1 от (рег. ) «Срок действия продлен» №2 от (рег. ) «Срок действия продлен»
Описание стандарта
ГОСТ 16553-88 Краны-штабелеры. Типы
Страницы стандарта






















