ГОСТ ISO 3164-2016 Машины землеройные. Лабораторные испытания по оценке устройств защиты. Требования к пространству, ограничивающему деформацию
ГОСТ ИСО
Скачать ГОСТ в PDF или DOC бесплатно
Основная информация
Обозначение:
ГОСТ ISO 3164-2016
Статус:
Действует
Тип:
ГОСТ ИСО
Название русское:
Машины землеройные. Лабораторные испытания по оценке устройств защиты. Требования к пространству, ограничивающему деформацию
Название английское:
Earth-moving machinery. Laboratory evaluations of protective structures. Specifications for deflection-limiting volume
Даты и сроки
Дата регистрации:
02-29-16
Дата издания:
10-14-16
Дата введения в действие:
05-01-17
Дата завершения срока действия:
-
Применение и описание
Область и условия применения:
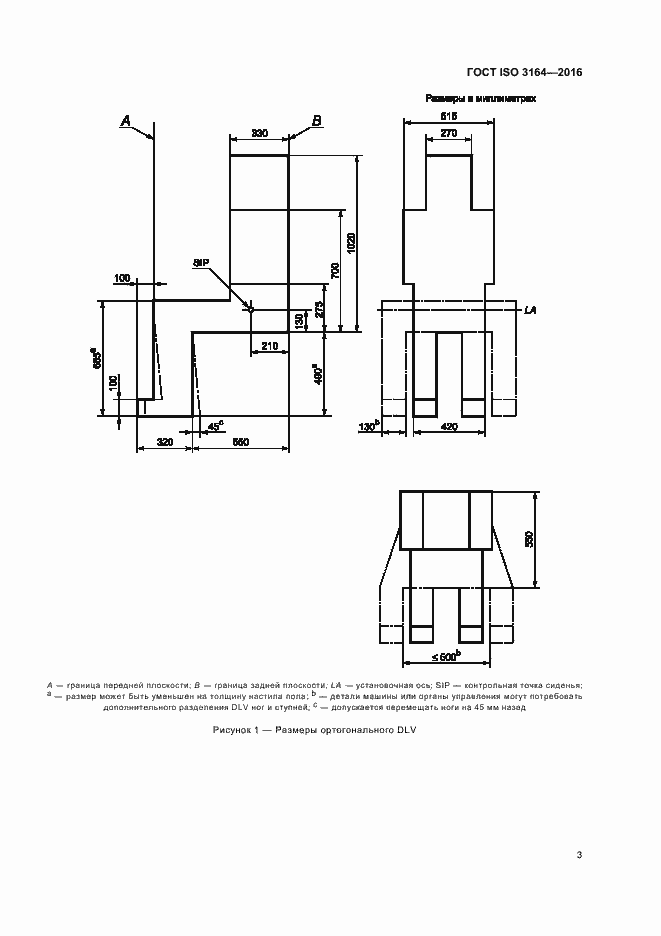
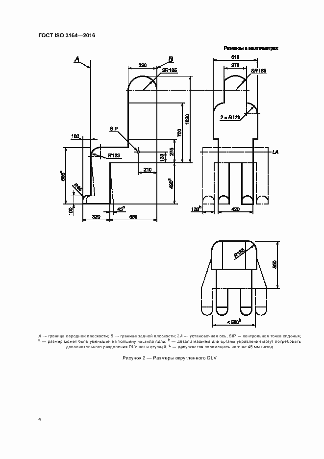
Настоящий стандарт устанавливает требования к объему ограничения деформации (DLV) при проведении лабораторных испытаний по оценке устройств защиты операторов землеройных машин, определенных в ISO 6165
Связи и замены
Заменяющий:
-
Описание стандарта
ГОСТ ISO 3164-2016 Машины землеройные. Лабораторные испытания по оценке устройств защиты. Требования к пространству, ограничивающему деформацию
Страницы стандарта











