ГОСТ 25782-90 Правила, терки и полутерки. Технические условия
ГОСТ
Скачать ГОСТ в PDF или DOC бесплатно
Основная информация
Обозначение:
ГОСТ 25782-90
Статус:
Утратил силу в РФ
Тип:
ГОСТ
Название русское:
Правила, терки и полутерки. Технические условия
Название английское:
Darbies, floats, semifloats. Specifications
Даты и сроки
Дата издания:
06-01-99
Дата введения в действие:
01-01-91
Дата завершения срока действия:
03-01-20
Применение и описание
Область и условия применения:
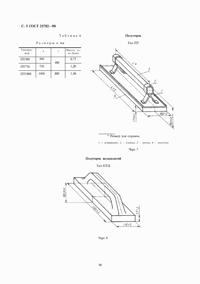
Настоящий стандарт распространяется на правила, терки и полутерки, применяемые при производстве штукатурных работ
Связи и замены
Заменяющий:
-
Взамен:
ГОСТ 25782-83
Описание стандарта
ГОСТ 25782-90 Правила, терки и полутерки. Технические условия
Страницы стандарта









