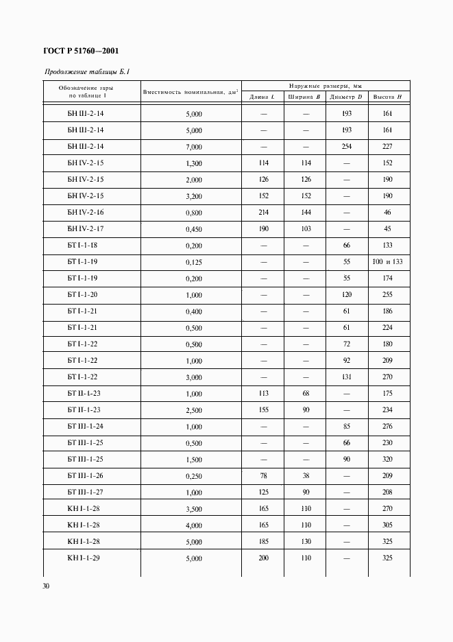
ГОСТ Р 51760-2001 Тара потребительская полимерная. Общие технические условия
ГОСТ Р
Скачать ГОСТ в PDF или DOC бесплатно
Основная информация
Обозначение:
ГОСТ Р 51760-2001
Статус:
Заменен
Тип:
ГОСТ Р
Название русское:
Тара потребительская полимерная. Общие технические условия
Название английское:
Polymeric consumers packagings. General specifications
Даты и сроки
Дата издания:
02-01-07
Дата введения в действие:
01-01-02
Дата завершения срока действия:
07-01-12
Применение и описание
Область и условия применения:
Настоящий стандарт распространяется на полимерную потребительскую тару: банки, бутылки, канистры, тубы, предназначенную для упаковывания и хранения пищевых продуктов, лекарственных средств, парфюмерно-косметических средств, товаров бытовой химии, лакокрасочных материалов, технических масел и смазок, продукции промышленного и бытового назначения. Стандарт не распространяется на пеналы и пакеты, на транспортную полимерную тару, в том числе ящики, а также на изделия культурно-бытового и хозяйственного назначения
Связи и замены
Заменяющий:
ГОСТ Р 51760-2011
Описание стандарта
ГОСТ Р 51760-2001 Тара потребительская полимерная. Общие технические условия
Страницы стандарта

















































