ГОСТ 33772-2016 Пакеты из бумаги и комбинированных материалов. Общие технические условия
ГОСТ
Скачать ГОСТ в PDF или DOC бесплатно
Основная информация
Обозначение:
ГОСТ 33772-2016
Статус:
Действует
Тип:
ГОСТ
Название русское:
Пакеты из бумаги и комбинированных материалов. Общие технические условия
Название английское:
Packets of paper and composite materials. General specifications
Даты и сроки
Дата регистрации:
07-27-16
Дата издания:
04-17-19
Дата введения в действие:
05-01-17
Дата завершения срока действия:
-
Применение и описание
Область и условия применения:
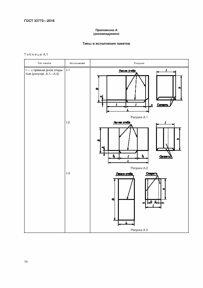
Настоящий стандарт распространяется на пакеты из бумаги и комбинированных материалов на основе бумаги (далее - пакеты), предназначенные для упаковывания сыпучей и штучной продукции. Стандарт применяют при разработке стандартов и технической документации на пакеты для упаковывания конкретных видов продукции
Связи и замены
Заменяющий:
-
Взамен:
ГОСТ 13502-86;ГОСТ 24370-80
Описание стандарта
ГОСТ 33772-2016 Пакеты из бумаги и комбинированных материалов. Общие технические условия
Страницы стандарта




















Приложение №1: Поправка к ГОСТ 33772-2016 Обозначение: Поправка к ГОСТ 33772-2016 Дата введения в действие: 15.03.2021
