ГОСТ Р 53361-2009 Мешки из бумаги и комбинированных материалов. Общие технические условия
ГОСТ Р
Скачать ГОСТ в PDF или DOC бесплатно
Основная информация
Обозначение:
ГОСТ Р 53361-2009
Статус:
Отменен
Тип:
ГОСТ Р
Название русское:
Мешки из бумаги и комбинированных материалов. Общие технические условия
Название английское:
Bags made of paper and composite materials. General specifications
Даты и сроки
Дата издания:
09-29-09
Дата введения в действие:
01-01-10
Дата завершения срока действия:
07-01-14
Применение и описание
Область и условия применения:
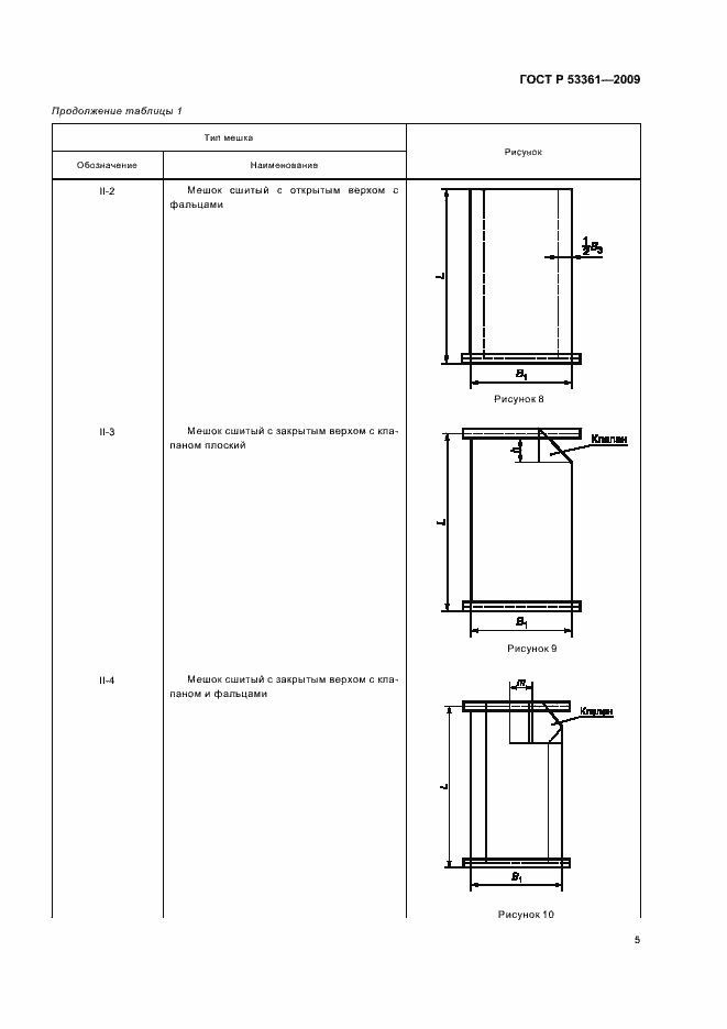
Настоящий стандарт распространяется на мешки из бумаги и комбинированных материалов, предназначенные для упаковывания сыпучей и штучной продукции массой до 50 кг. Мешки, предназначенные для упаковывания, транспортирования и хранения опасных грузов, должны соответствовать требованиям ГОСТ 26319
Связи и замены
Заменяющий:
-
Изменения и переиздания
Список изменений:
№0 от (рег. ) «Текстовое изменение; Изменено заглавие»
Описание стандарта
ГОСТ Р 53361-2009 Мешки из бумаги и комбинированных материалов. Общие технические условия
Страницы стандарта


























