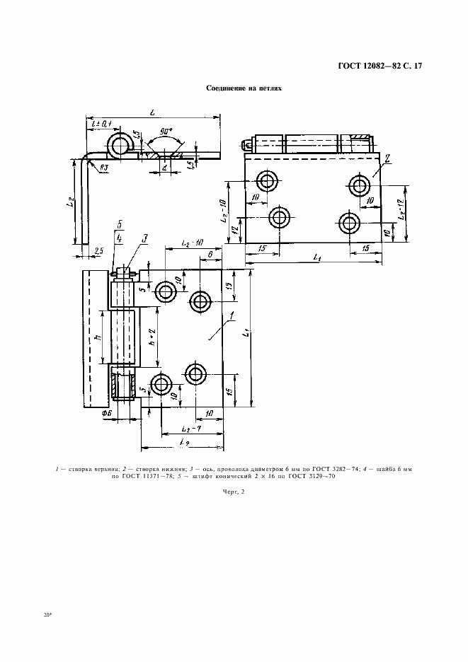
ГОСТ 12082-82 Обрешетки дощатые для грузов массой до 500 кг. Общие технические условия
ГОСТ
Скачать ГОСТ в PDF или DOC бесплатно
Основная информация
Обозначение:
ГОСТ 12082-82
Статус:
Действует
Тип:
ГОСТ
Название русское:
Обрешетки дощатые для грузов массой до 500 кг. Общие технические условия
Название английское:
Roof boarding for consignments up to 500 kg. General specifications
Даты и сроки
Дата издания:
07-01-08
Дата введения в действие:
01-01-83
Дата завершения срока действия:
-
Применение и описание
Область и условия применения:
Настоящий стандарт распространяется на дощатые разборные и неразборные обрешетки для грузов массой до 500 кг и должен применяться при разработке стандартов или другой нормативно-технической документации на обрешетки, предназначенные для упаковывания конкретных видов продукции
Связи и замены
Заменяющий:
-
Взамен:
ГОСТ 12082-77
Изменения и переиздания
Список изменений:
№1 от (рег. ) «Срок действия продлен» №2 от (рег. ) «Срок действия продлен» №3 от (рег. ) «Срок действия продлен»
Описание стандарта
ГОСТ 12082-82 Обрешетки дощатые для грузов массой до 500 кг. Общие технические условия
Страницы стандарта




















