ГОСТ Р 52524-2019 Контейнеры грузовые. Кодирование, идентификация и маркировка
ГОСТ Р
Скачать ГОСТ в PDF или DOC бесплатно
Основная информация
Обозначение:
ГОСТ Р 52524-2019
Статус:
Действует
Тип:
ГОСТ Р
Название русское:
Контейнеры грузовые. Кодирование, идентификация и маркировка
Название английское:
Freight containers. Coding, identification and marking
Даты и сроки
Дата издания:
10-02-19
Дата введения в действие:
01-01-20
Дата завершения срока действия:
-
Применение и описание
Область и условия применения:
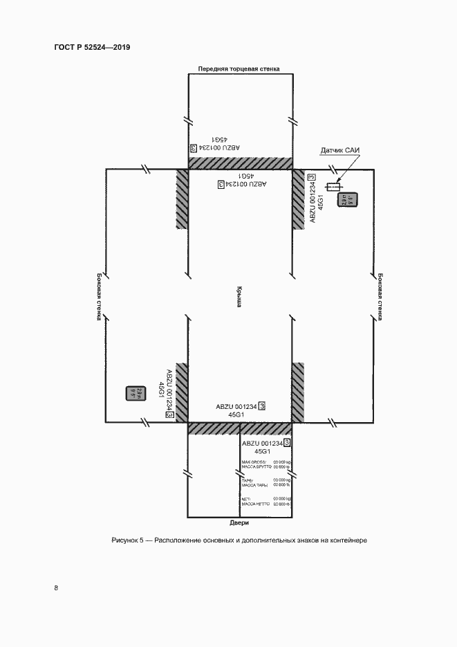
Настоящий стандарт распространяется на систему идентификации и обеспечения информации о грузовых контейнерах с помощью кодов и маркировки. Система идентификации предназначена для общего использования, например для работы с документацией, осуществления контроля (в т. ч. в автоматизированных системах обработки данных) и непосредственно маркировки контейнеров. Стандарт содержит методы представления данных системы идентификации и других данных (включая эксплуатационные) на контейнерах при помощи установленных знаков маркировки
Связи и замены
Заменяющий:
-
Взамен:
ГОСТ Р 52524-2005
Описание стандарта
ГОСТ Р 52524-2019 Контейнеры грузовые. Кодирование, идентификация и маркировка
Страницы стандарта


























