ГОСТ Р 57271.6-2016 Менеджмент вспомогательных процессов в управлении недвижимостью. Часть 6. Измерение площадей и объемов в управлении недвижимостью
ГОСТ Р
Скачать ГОСТ в PDF или DOC бесплатно
Основная информация
Обозначение:
ГОСТ Р 57271.6-2016
Статус:
Действует
Тип:
ГОСТ Р
Название русское:
Менеджмент вспомогательных процессов в управлении недвижимостью. Часть 6. Измерение площадей и объемов в управлении недвижимостью
Название английское:
Facility management. Part 6. Area and space measurement in facility management
Даты и сроки
Дата издания:
06-16-20
Дата введения в действие:
12-01-17
Дата завершения срока действия:
-
Применение и описание
Область и условия применения:
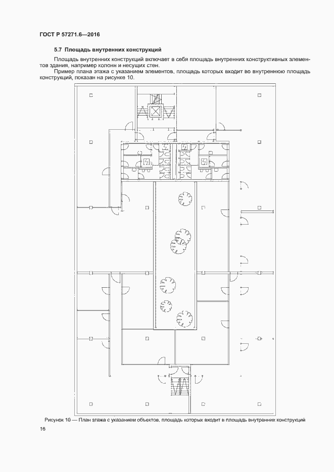
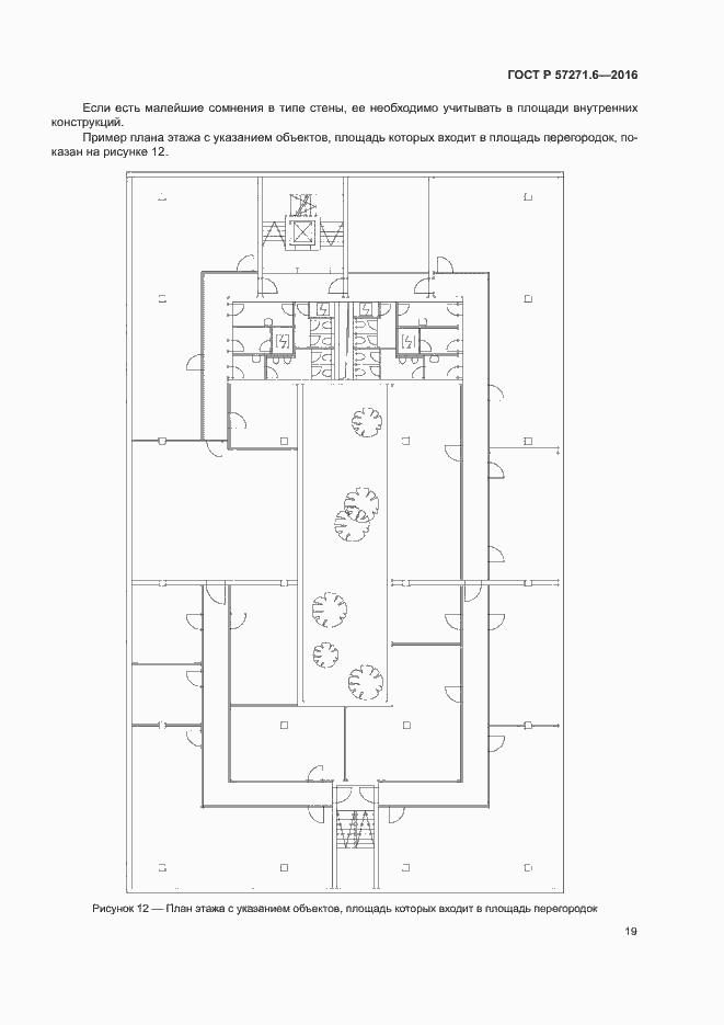
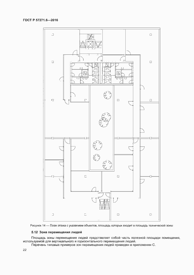
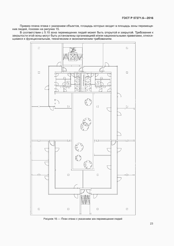
Настоящий стандарт соответствует основным принципам планирования и проектирования, управление зонами и пространствами помещений, финансового анализа, а также бенчмаркинга в области управления недвижимостью. Настоящий стандарт распространяется на измерение площадей и объемов имеющихся в собственности или арендуемых помещений, а также зданий на стадии проектирования и разработки) Приведенными в настоящем стандарте принципами следует руководствоваться при применении международных стандартов, работе с зарубежными партнерами и анализе данных международных документов. В остальных случаях при выполнении измерений площади и объема необходимо в первую очередь руководствоваться национальными требованиями в этой области.). Настоящий стандарт обеспечивает основу для измерения площадей по внутренним и наружным размерам здания. Помимо этого в нем установлены условия и методы измерения площадей и объемов в зданиях и/или в частях зданий независимо от их функционального назначения
Связи и замены
Заменяющий:
-
Описание стандарта
ГОСТ Р 57271.6-2016 Менеджмент вспомогательных процессов в управлении недвижимостью. Часть 6. Измерение площадей и объемов в управлении недвижимостью
Страницы стандарта













































