ГОСТ Р ИСО 6941-99 Система стандартов безопасности труда. Материалы текстильные для средств индивидуальной защиты. Метод определения способности распространения пламени на вертикально ориентированных пробах
ГОСТ Р ИСО
Скачать ГОСТ в PDF или DOC бесплатно
Основная информация
Обозначение:
ГОСТ Р ИСО 6941-99
Статус:
Действует
Тип:
ГОСТ Р ИСО
Название русское:
Система стандартов безопасности труда. Материалы текстильные для средств индивидуальной защиты. Метод определения способности распространения пламени на вертикально ориентированных пробах
Название английское:
Occupational safety standards system. Textile fabrics for protective clothing. Measurement of flame spread properties of vertically oriented specimens
Даты и сроки
Дата издания:
06-06-00
Дата введения в действие:
01-01-01
Дата завершения срока действия:
-
Применение и описание
Область и условия применения:
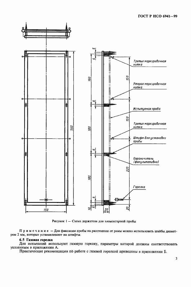
Настоящий стандарт распространяется на текстильные материалы одно- и многокомпонентные (с покрытием, стеганые, многослойные конструкции с чередующимися слоями в различных комбинациях), предназначенные для изготовления средств индивидуальной защиты. Настоящий стандарт устанавливает метод определения свойств распространения пламени на вертикально ориентированных пробах в строго контролируемых условиях. Стандарт не распространяется на одежду для пожарных
Связи и замены
Заменяющий:
-
Описание стандарта
ГОСТ Р ИСО 6941-99 Система стандартов безопасности труда. Материалы текстильные для средств индивидуальной защиты. Метод определения способности распространения пламени на вертикально ориентированных пробах
Страницы стандарта










