ГОСТ Р ИСО 10618-2012 Волокно углеродное. Метод определения механических свойств пропитанных смолой нитей при растяжении
ГОСТ Р ИСО
Скачать ГОСТ в PDF или DOC бесплатно
Основная информация
Обозначение:
ГОСТ Р ИСО 10618-2012
Статус:
Действует
Тип:
ГОСТ Р ИСО
Название русское:
Волокно углеродное. Метод определения механических свойств пропитанных смолой нитей при растяжении
Название английское:
Carbon fibre. Method for determination of tensile properties of resin-impregnated yarn
Даты и сроки
Дата издания:
05-25-15
Дата введения в действие:
01-01-16
Дата завершения срока действия:
-
Применение и описание
Область и условия применения:
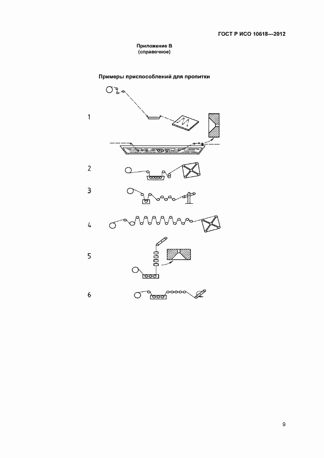
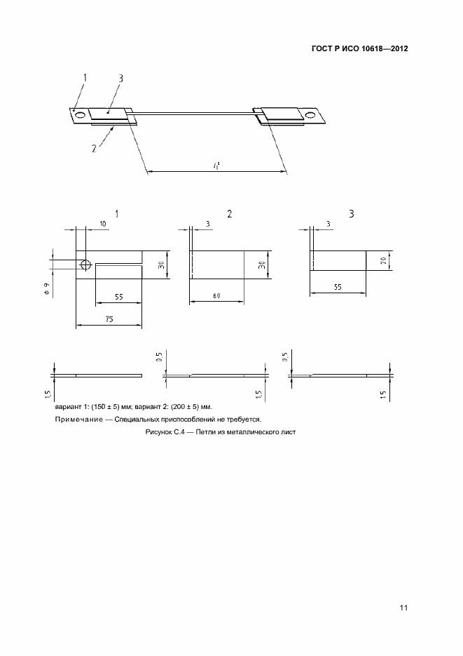
Настоящий стандарт устанавливает метод определения предела прочности при растяжении, модуля упругости при растяжении и деформации при максимальной нагрузке образца нити, пропитанной смолой. Стандарт распространяется на нити из углеродного волокна, комплексные и штапельные нити, используемые для упрочнения композитных материалов
Связи и замены
Заменяющий:
-
Описание стандарта
ГОСТ Р ИСО 10618-2012 Волокно углеродное. Метод определения механических свойств пропитанных смолой нитей при растяжении
Страницы стандарта















