ГОСТ 28416-89 Куртки форменные для военнослужащих. Технические условия
ГОСТ
Скачать ГОСТ в PDF или DOC бесплатно
Основная информация
Обозначение:
ГОСТ 28416-89
Статус:
Действует
Тип:
ГОСТ
Название русское:
Куртки форменные для военнослужащих. Технические условия
Название английское:
Uniform jackets for military men. Specifications
Даты и сроки
Дата издания:
08-01-05
Дата введения в действие:
01-01-91
Дата завершения срока действия:
-
Применение и описание
Область и условия применения:
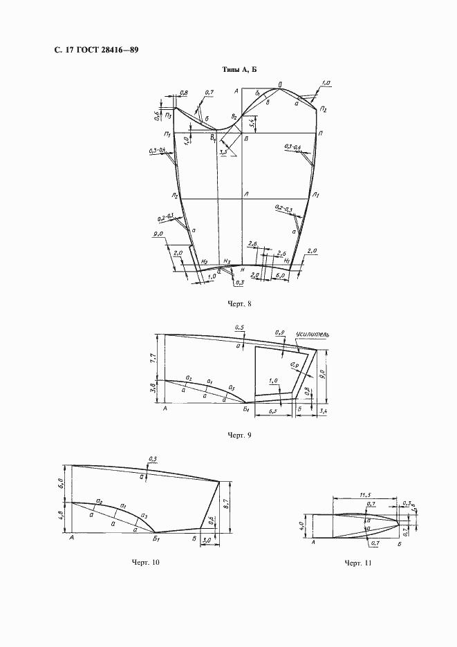
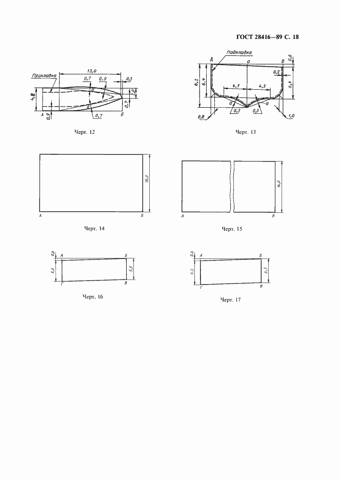
Настоящий стандарт распространяется на форменные куртки для военнослужащих Советской Армии и Военно-морского флота
Связи и замены
Заменяющий:
-
Описание стандарта
ГОСТ 28416-89 Куртки форменные для военнослужащих. Технические условия
Страницы стандарта























