ГОСТ Р 52504-2005 Совместимость технических средств электромагнитная. Машины для сельского и лесного хозяйства. Методы испытаний и критерии приемки
ГОСТ Р
Скачать ГОСТ в PDF или DOC бесплатно
Основная информация
Обозначение:
ГОСТ Р 52504-2005
Статус:
Отменен
Тип:
ГОСТ Р
Название русское:
Совместимость технических средств электромагнитная. Машины для сельского и лесного хозяйства. Методы испытаний и критерии приемки
Название английское:
Electromagnetic compatibility of technical equipment. Agricultural and forestry machinery. Test methods and acceptance criteria
Даты и сроки
Дата издания:
07-11-06
Дата введения в действие:
01-01-07
Дата завершения срока действия:
01-01-14
Применение и описание
Область и условия применения:
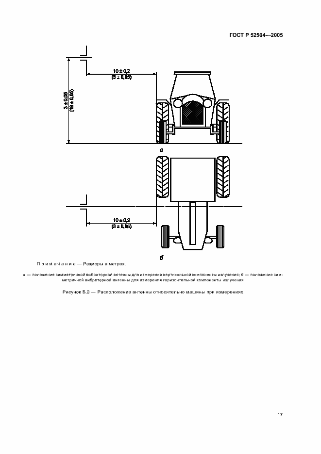
Настоящий стандарт устанавливает методы испытаний и критерии приемки для оценки электромагнитной совместимости тракторов и всех видов подвижных (включая ручные) машин и механизмов сельскохозяйственного и лесохозяйственного назначения, в также ландшафтных и садовых машин и механизмов при поставке их изготовителем. Настоящий стандарт распространяется на машины и электрические/электронные сборочные узлы, входящие в состав машин. Стандарт не распространяется на машины, питание которых осуществляется непосредственно от низковольтных электрических сетей общего назначения
Связи и замены
Заменяющий:
-
Изменения и переиздания
Список изменений:
№0 от (рег. ) «Текстовое изменение; Изменено заглавие»
Описание стандарта
ГОСТ Р 52504-2005 Совместимость технических средств электромагнитная. Машины для сельского и лесного хозяйства. Методы испытаний и критерии приемки
Страницы стандарта



































