ГОСТ ISO 11001-1-2019 Тракторы сельскохозяйственные колесные. Трехточечные сцепные устройства. Часть 1. U-образное сцепное устройство
ГОСТ ИСО
Скачать ГОСТ в PDF или DOC бесплатно
Основная информация
Обозначение:
ГОСТ ISO 11001-1-2019
Статус:
Действует
Тип:
ГОСТ ИСО
Название русское:
Тракторы сельскохозяйственные колесные. Трехточечные сцепные устройства. Часть 1. U-образное сцепное устройство
Название английское:
Agricultural wheeled tractors. Three-point hitch couplers. Part 1. U-frame coupler
Даты и сроки
Дата регистрации:
09-30-19
Дата издания:
11-25-19
Дата введения в действие:
08-01-20
Применение и описание
Область и условия применения:
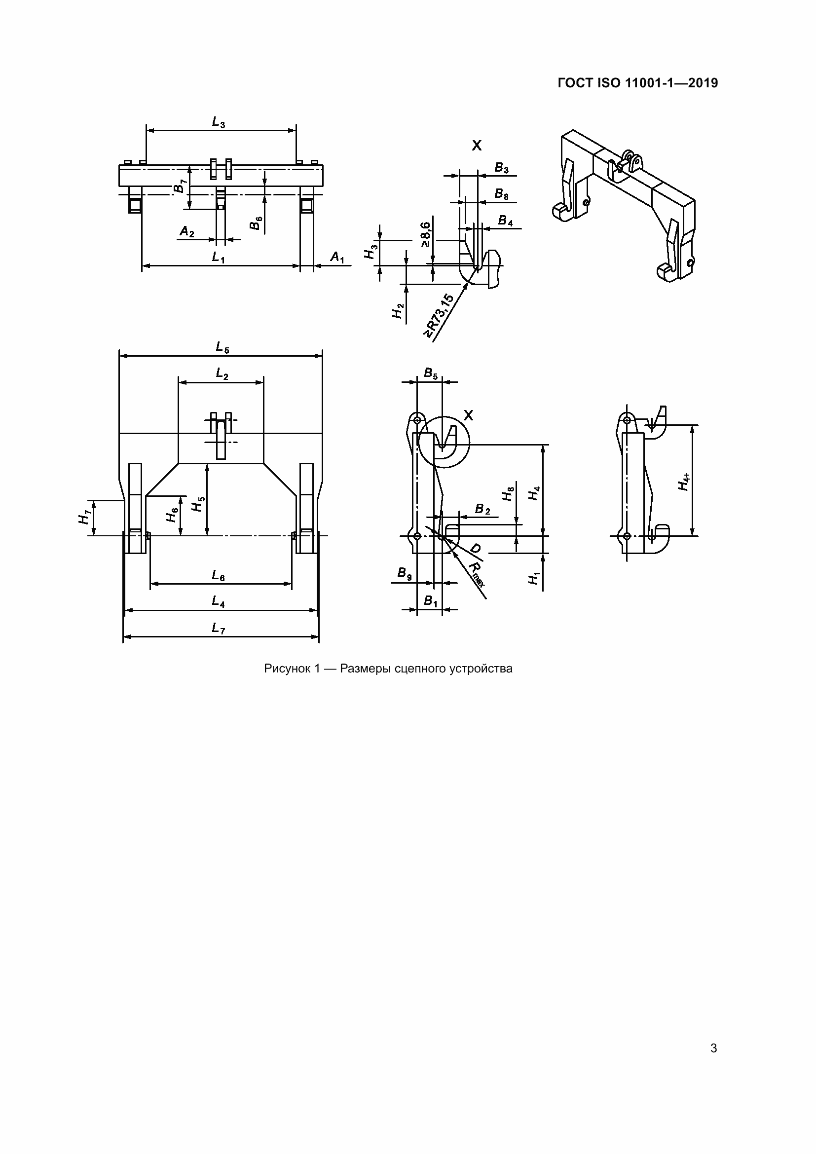
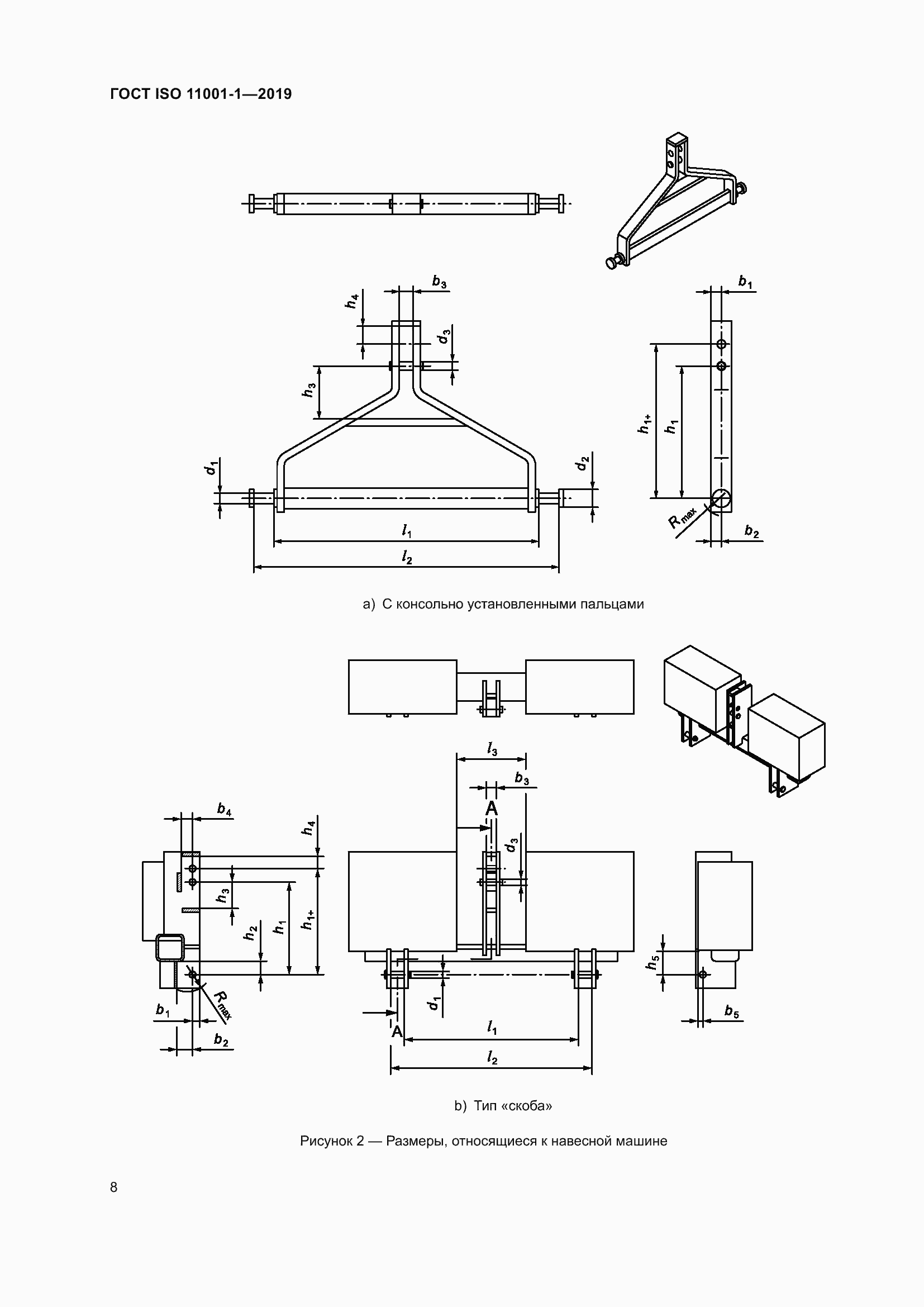
Настоящий стандарт устанавливает основные размеры для присоединения навесных машин с трехточечным сцепным устройством к колесным и гусеничным сельскохозяйственным тракторам, оборудованным трехточечным сцепным устройством со свободной тягой по ISO 730 или ISO 8759-1 и U-образным сцепным устройством. Система трехточечных сцепных устройств устанавливает специальный метод агрегатирования навесных машин. Сцепные устройства являются дополнительным элементом, расположенным между трехточечным навесным устройством трактора и навесной машиной и позволяющим производить агрегатирование и отсоединение навесной машины с рабочего места оператора трактора. В связи с особенностями конструкции и условий работы сцепных устройств может возникнуть необходимость изменять длину верхних и нижних тяг, указанную в ссылочных стандартах. Настоящий стандарт применяется к сцепным устройствам категорий 1, 2N, 2, 3N, 3, 4N и 4 колесных и гусеничных сельскохозяйственных тракторов по ISO 730 или ISO 8759-1
Описание стандарта
ГОСТ ISO 11001-1-2019 Тракторы сельскохозяйственные колесные. Трехточечные сцепные устройства. Часть 1. U-образное сцепное устройство
Страницы стандарта















