ГОСТ ISO 8589-2014 Органолептический анализ. Общее руководство по проектированию лабораторных помещений
ГОСТ ИСО
Скачать ГОСТ в PDF или DOC бесплатно
Основная информация
Обозначение:
ГОСТ ISO 8589-2014
Статус:
Действует
Тип:
ГОСТ ИСО
Название русское:
Органолептический анализ. Общее руководство по проектированию лабораторных помещений
Название английское:
Sensory analysis. General guidance for the design of test rooms
Даты и сроки
Дата регистрации:
08-29-14
Дата издания:
03-02-15
Дата введения в действие:
01-01-16
Дата завершения срока действия:
-
Применение и описание
Область и условия применения:
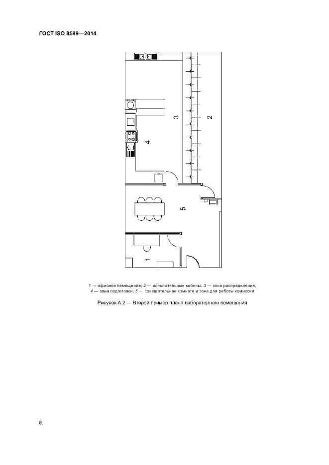
Настоящий стандарт содержит общее руководство по проектированию лабораторных помещений, предназначенных для проведения органолептического анализа продукции. Настоящий стандарт содержит описание требований к планировке лабораторных помещений, в число которых входят зона испытаний, зона подготовки и офисное помещение, устанавливая основные требования и требования, выполнение которых желательно. Применение настоящего стандарта не ограничено каким-либо определенным видом продукции или испытаний
Связи и замены
Заменяющий:
-
Описание стандарта
ГОСТ ISO 8589-2014 Органолептический анализ. Общее руководство по проектированию лабораторных помещений
Страницы стандарта


















