ГОСТ Р ИСО 6257-2015 Материалы углеродные для производства алюминия. Пек для электродов. Отбор проб
ГОСТ Р ИСО
Скачать ГОСТ в PDF или DOC бесплатно
Основная информация
Обозначение:
ГОСТ Р ИСО 6257-2015
Статус:
Действует
Тип:
ГОСТ Р ИСО
Название русское:
Материалы углеродные для производства алюминия. Пек для электродов. Отбор проб
Название английское:
Carbonaceous materials used in the production of aluminium. Pitch for electrodes. Sampling
Даты и сроки
Дата издания:
05-20-19
Дата введения в действие:
07-01-16
Дата завершения срока действия:
-
Применение и описание
Область и условия применения:
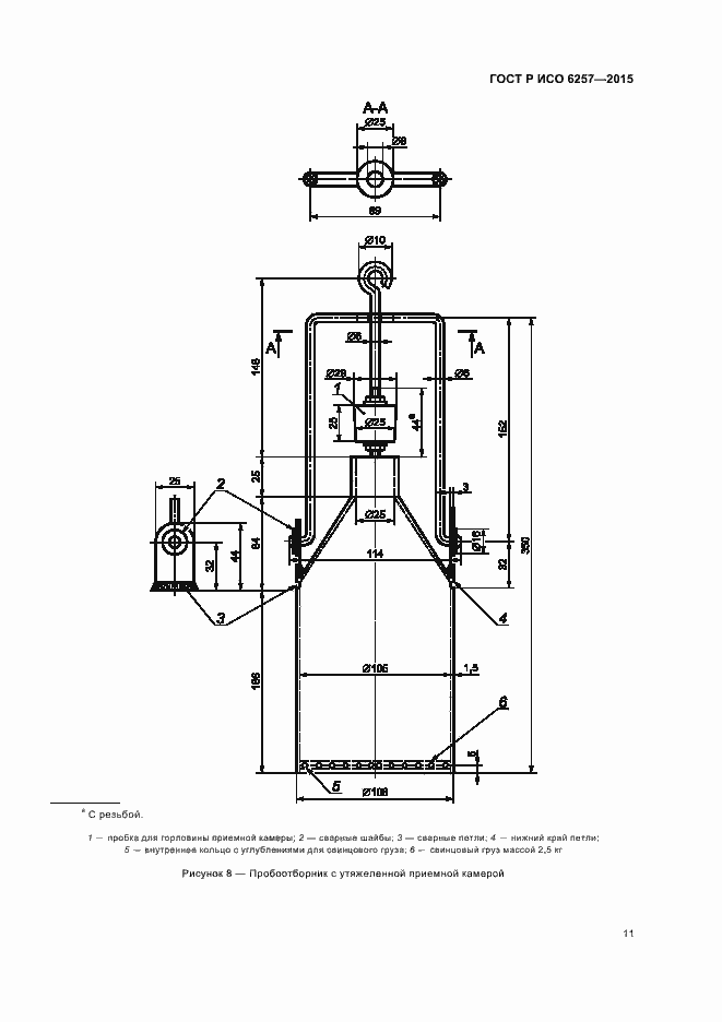
Настоящий стандарт распространяется на пеки, используемые в электродных углеродных материалах для производства алюминия, и устанавливает методы отбора и подготовки проб. Эти методы применимы к маркам пека в жидком и твердом виде, имеющего температуру размягчения более 30 °С (в соответствии с ИСO 5940). Методы отбора проб применимы к партиям пека без упаковки, упакованным или в транспортных средствах на объектах производства, хранения и поставки. Методы отбора проб применимы как к большим поставкам, так и нескольким партиям пека в жидком виде при погрузке и разгрузке судов
Связи и замены
Заменяющий:
-
Описание стандарта
ГОСТ Р ИСО 6257-2015 Материалы углеродные для производства алюминия. Пек для электродов. Отбор проб
Страницы стандарта






















