ГОСТ 7918-75 Замки для геологоразведочных бурильных труб диаметром 50 мм. Технические условия
ГОСТ
Скачать ГОСТ в PDF или DOC бесплатно
Основная информация
Обозначение:
ГОСТ 7918-75
Статус:
Действует
Тип:
ГОСТ
Название русское:
Замки для геологоразведочных бурильных труб диаметром 50 мм. Технические условия
Название английское:
Tool joints for 50 mm diameter drilling pipes. Specifications
Даты и сроки
Дата издания:
08-01-06
Дата введения в действие:
01-01-76
Дата завершения срока действия:
-
Применение и описание
Область и условия применения:
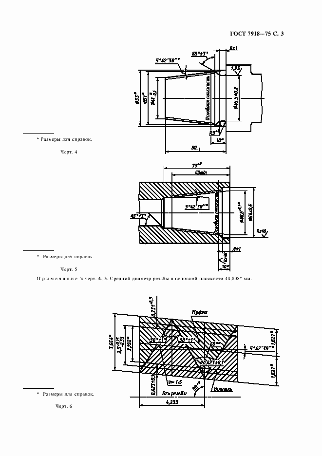
Настоящий стандарт распространяется на замки, предназначенные для соединения геологоразведочных бурильных труб и на замковую и трубную резьбу, применяемую для соединения бурового инструмента
Связи и замены
Заменяющий:
-
Взамен:
ГОСТ 7918-64
Изменения и переиздания
Список изменений:
№1 от (рег. ) «Срок действия продлен» №2 от (рег. ) «Срок действия продлен» №3 от (рег. ) «Срок действия продлен»
Описание стандарта
ГОСТ 7918-75 Замки для геологоразведочных бурильных труб диаметром 50 мм. Технические условия
Страницы стандарта










