ГОСТы >
73.100.20 Оборудование для вентиляции, кондиционирования воздуха и освещения >
ГОСТ Р 54772-2011
ГОСТ Р 54772-2011 Трубы вентиляционные гибкие шахтные и фасонные части к ним. Общие технические требования и методы испытаний
ГОСТ Р
Скачать ГОСТ в PDF или DOC бесплатно
Основная информация
Обозначение:
ГОСТ Р 54772-2011
Статус:
Действует
Тип:
ГОСТ Р
Название русское:
Трубы вентиляционные гибкие шахтные и фасонные части к ним. Общие технические требования и методы испытаний
Название английское:
Supple mining main vents and shaped components for them. General technical requirements and test methods
Даты и сроки
Дата издания:
10-25-12
Дата введения в действие:
01-01-13
Дата завершения срока действия:
-
Применение и описание
Область и условия применения:
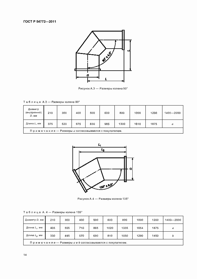
Настоящий стандарт распространяется на плоские (гладкие), спиральные и армированные гибкие вентиляционные шахтные трубы и фасонные части к ним из трубных материалов на основе искусственных кож с соединением их сваркой, предназначенные для транспортирования воздуха в системах проветривания тупиковых выработок горно-добывающих предприятий и подземном строительстве в следующих условиях: - угольные шахты и рудники, включая опасные по газу и/или пыли; - относительная влажность воздуха при температуре 25 град. С до 98 %; - температура окружающей среды от плюс 40 град. С до минус 20 град. С. Настоящий стандарт устанавливает основные показатели и методы испытаний вентиляционных гибких шахтных труб
Связи и замены
Заменяющий:
-
Описание стандарта
ГОСТ Р 54772-2011 Трубы вентиляционные гибкие шахтные и фасонные части к ним. Общие технические требования и методы испытаний
Страницы стандарта



























