ГОСТы >
73.100.10 Оборудование для проходки и крепления горных выработок, установки тюбинговой крепи >
ГОСТ Р 57054-2016
ГОСТ Р 57054-2016 Оборудование горно-шахтное. Тюбинги чугунные. Комплекты тюбинговых колец. Общие технические условия
ГОСТ Р
Скачать ГОСТ в PDF или DOC бесплатно
Основная информация
Обозначение:
ГОСТ Р 57054-2016
Статус:
Действует
Тип:
ГОСТ Р
Название русское:
Оборудование горно-шахтное. Тюбинги чугунные. Комплекты тюбинговых колец. Общие технические условия
Название английское:
Mining equipment. Tubing cast iron. Sets of tubing rings. General specifications
Даты и сроки
Дата издания:
09-26-16
Дата введения в действие:
06-01-17
Дата завершения срока действия:
-
Применение и описание
Область и условия применения:
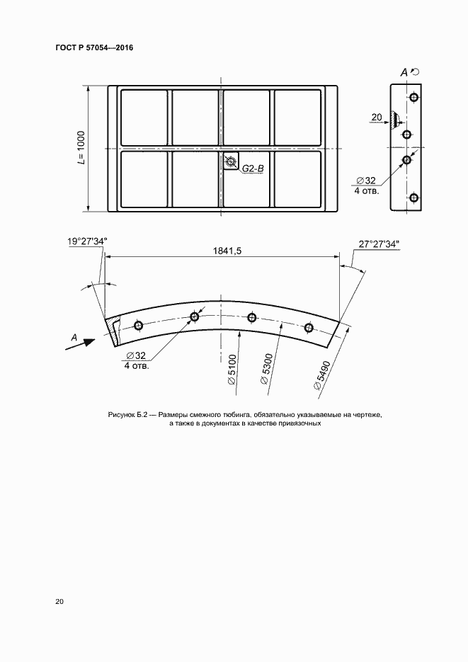
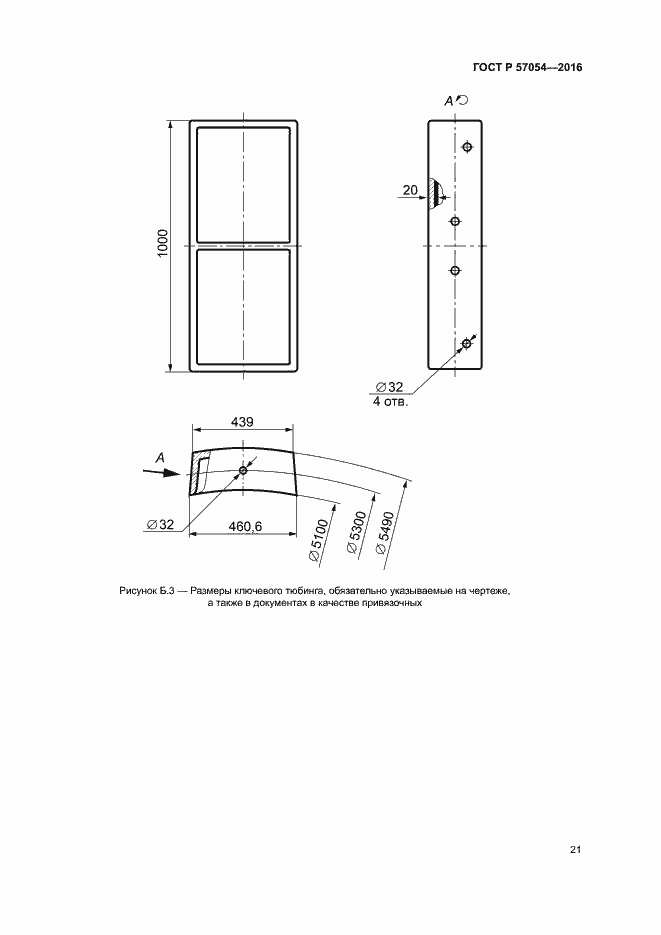
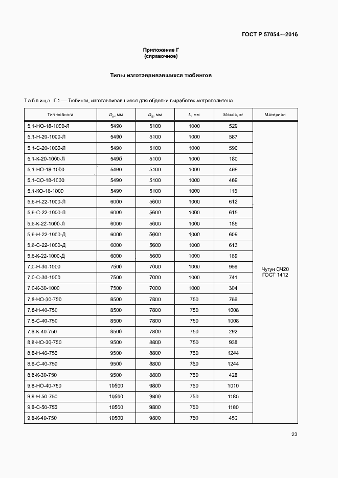
Настоящий стандарт распространяется на чугунные тюбинги и на собираемые из них комплекты тюбинговых колец, предназначенных для крепления и обделки подземных выработок при сооружении метрополитенов, тоннелей, а также на чугунные тюбинги и на собираемые из них комплекты тюбинговых колец аналогичной конструкции, применяемых в горнорудной промышленности и на других объектах при подземном строительстве
Связи и замены
Заменяющий:
-
Описание стандарта
ГОСТ Р 57054-2016 Оборудование горно-шахтное. Тюбинги чугунные. Комплекты тюбинговых колец. Общие технические условия
Страницы стандарта






























