ГОСТ 14921-78 Газы углеводородные сжиженные. Методы отбора проб
ГОСТ
Скачать ГОСТ в PDF или DOC бесплатно
Основная информация
Обозначение:
ГОСТ 14921-78
Статус:
Заменен
Тип:
ГОСТ
Название русское:
Газы углеводородные сжиженные. Методы отбора проб
Название английское:
Liquefied hydrocarbon gases. Methods of sampling
Даты и сроки
Дата издания:
03-01-06
Дата введения в действие:
01-01-80
Дата завершения срока действия:
07-01-19
Применение и описание
Область и условия применения:
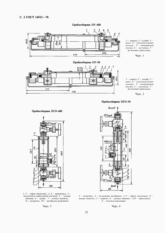
Настоящий стандарт распространяется на сжиженные углеводородные газы, находящиеся под избыточным давлением собственных паров, и устанавливает методы отбора их из стационарных емкостей (цилиндрических, шаровых), железнодорожных цистерн, баллонов, а также из трубопроводов при перекачке газов в герметичный металлический пробоотборник путем продувки его сжиженным газом. Допускается отбирать пробы сжиженных газов в контейнеры
Связи и замены
Заменяющий:
ГОСТ 14921-2018
Взамен:
ГОСТ 14921-69
Изменения и переиздания
Список изменений:
№1 от (рег. ) «Срок действия продлен» №2 от (рег. ) «Срок действия продлен» №3 от (рег. ) «Срок действия продлен»
Описание стандарта
ГОСТ 14921-78 Газы углеводородные сжиженные. Методы отбора проб
Страницы стандарта







