ГОСТ 33213-2014 Контроль параметров буровых растворов в промысловых условиях. Растворы на водной основе
ГОСТ
Скачать ГОСТ в PDF или DOC бесплатно
Основная информация
Обозначение:
ГОСТ 33213-2014
Статус:
Действует
Тип:
ГОСТ
Название русское:
Контроль параметров буровых растворов в промысловых условиях. Растворы на водной основе
Название английское:
Field testing of drilling fluids. Water-based fluids
Даты и сроки
Дата регистрации:
12-22-14
Дата издания:
12-15-15
Дата введения в действие:
04-01-16
Дата завершения срока действия:
-
Применение и описание
Область и условия применения:
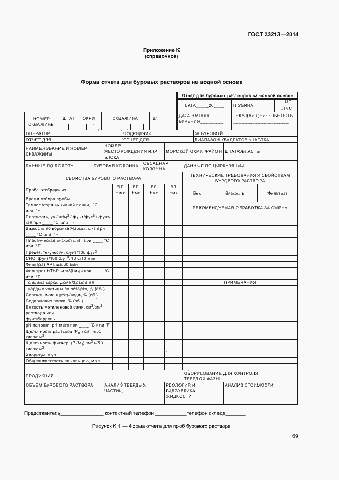
Настоящий стандарт устанавливает стандартные процедуры для определения следующих параметров буровых растворов на водной основе: a) плотность бурового раствора (удельный вес бурового раствора); b) вязкость и прочность геля; c) объем фильтрата; d) содержание водной, углеводородной и твердой фаз; e) содержание песка; f) адсорбция метиленового синего; g) pH; h) щелочность и содержание извести; i) содержание хлорид-иона; j) общая жесткость в пересчете на кальций. Приложения А - К представляют дополнительные методы испытаний, которые могут быть использованы в следующих целях: - химический анализ для определения кальция, магния, сульфата кальция, сульфидов, карбонатов и калия; - определение прочности на сдвиг; - определение удельного электрического сопротивления; - удаление воздуха; - мониторинг коррозии бурильных труб; - отбор проб, контроль и отбраковка; - отбор проб на буровой площадке; - калибровка и верификация стеклянной измерительной посуды, термометров, вискозиметров, чашек ретортной установки и весов для бурового раствора; - испытание для определения закупоривающей способности при высокой температуре и высоком давлении для двух типов оборудования; - пример заполнения формы протокола анализа бурового раствора на водной основе
Связи и замены
Заменяющий:
-
Описание стандарта
ГОСТ 33213-2014 Контроль параметров буровых растворов в промысловых условиях. Растворы на водной основе
Страницы стандарта















































































