ГОСТ ISO 13706-2011 Аппараты с воздушным охлаждением. Общие технические требования
ГОСТ ИСО
Скачать ГОСТ в PDF или DOC бесплатно
Основная информация
Обозначение:
ГОСТ ISO 13706-2011
Статус:
Заменен
Тип:
ГОСТ ИСО
Название русское:
Аппараты с воздушным охлаждением. Общие технические требования
Название английское:
Air-cooled apparatus. General technical requirements
Даты и сроки
Дата регистрации:
11-29-11
Дата издания:
03-14-13
Дата введения в действие:
01-01-13
Применение и описание
Область и условия применения:
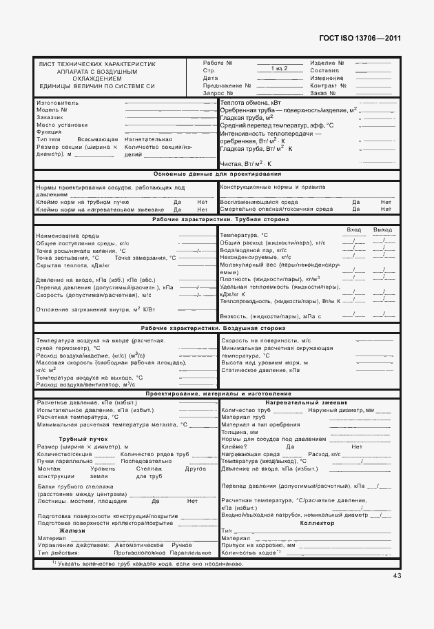
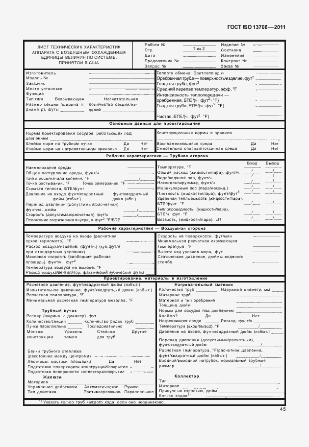
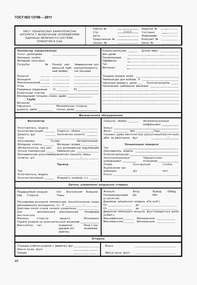
Настоящий стандарт устанавливает требования и рекомендации по проектированию, материалам, изготовлению, контролю, испытаниям и подготовке к отгрузке аппаратов с воздушным охлаждением для использования в нефтяной и газовой промышленности. Настоящий стандарт применим к аппаратам с воздушным охлаждением, предназначенным для охлаждения и конденсации различных сред с горизонтальными трубными пучками, но его основные требования допускается применять и к другим конфигурациям
Описание стандарта
ГОСТ ISO 13706-2011 Аппараты с воздушным охлаждением. Общие технические требования
Страницы стандарта





































































































