ГОСТ Р 56830-2015 Нефтяная и газовая промышленность. Установки скважинных электроприводных лопастных насосов. Общие технические требования
ГОСТ Р
Скачать ГОСТ в PDF или DOC бесплатно
Основная информация
Обозначение:
ГОСТ Р 56830-2015
Статус:
Действует
Тип:
ГОСТ Р
Название русское:
Нефтяная и газовая промышленность. Установки скважинных электроприводных лопастных насосов. Общие технические требования
Название английское:
Petroleum and natural gas industries. Electrical submersible pump units. General technical requirements
Даты и сроки
Дата издания:
02-25-16
Дата введения в действие:
07-01-16
Дата завершения срока действия:
-
Применение и описание
Область и условия применения:
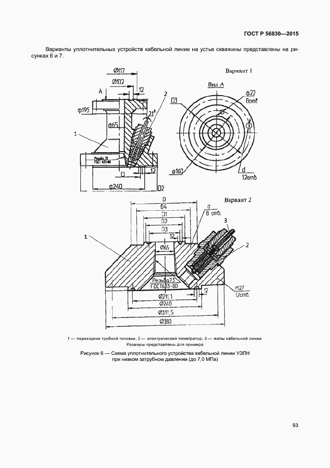
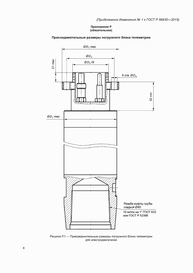
Настоящий стандарт устанавливает общие правила и характеристики установок электроприводных лопастных насосов, условиям их эксплуатации, оценке надежности, обозначению, определению эксплуатационных и функциональных характеристик, показателям энергетической эффективности, правилам приемки, хранения и перемещения систем, входящих в установку, указания по размещению установки в скважине, применяемому устьевому оборудованию. Данный стандарт распространяется на установки электроприводных скважинных лопастных насосов для добычи нефти, лопастные насосы, предвключенные газостабилизирующие устройства, электродвигатели, гидрозащиты, кабельные линии, кабельные удлинители, системы погружной телеметрии, станции управления, электрические трансформаторы для питания погружных электродвигателей и оборудование устья скважин
Связи и замены
Заменяющий:
-
Изменения и переиздания
Список изменений:
№1 от (рег. ) «Текстовое изменение; Изменены ссылочные НД»
Описание стандарта
ГОСТ Р 56830-2015 Нефтяная и газовая промышленность. Установки скважинных электроприводных лопастных насосов. Общие технические требования
Страницы стандарта


















































































































































Приложение №1: Изменение №1 к ГОСТ Р 56830-2015 Обозначение: Изменение №1 к ГОСТ Р 56830-2015 Дата введения в действие: 01.10.2018

Приложение №1: Изменение №1 к ГОСТ Р 56830-2015 Обозначение: Изменение №1 к ГОСТ Р 56830-2015 Дата введения в действие: 01.10.2018

Приложение №1: Изменение №1 к ГОСТ Р 56830-2015 Обозначение: Изменение №1 к ГОСТ Р 56830-2015 Дата введения в действие: 01.10.2018

Приложение №1: Изменение №1 к ГОСТ Р 56830-2015 Обозначение: Изменение №1 к ГОСТ Р 56830-2015 Дата введения в действие: 01.10.2018

Приложение №1: Изменение №1 к ГОСТ Р 56830-2015 Обозначение: Изменение №1 к ГОСТ Р 56830-2015 Дата введения в действие: 01.10.2018

Приложение №1: Изменение №1 к ГОСТ Р 56830-2015 Обозначение: Изменение №1 к ГОСТ Р 56830-2015 Дата введения в действие: 01.10.2018

Приложение №1: Изменение №1 к ГОСТ Р 56830-2015 Обозначение: Изменение №1 к ГОСТ Р 56830-2015 Дата введения в действие: 01.10.2018
