ГОСТ 23979-2018 Переводники для обсадных и насосно-компрессорных колонн. Технические условия
ГОСТ
Скачать ГОСТ в PDF или DOC бесплатно
Основная информация
Обозначение:
ГОСТ 23979-2018
Статус:
Действует
Тип:
ГОСТ
Название русское:
Переводники для обсадных и насосно-компрессорных колонн. Технические условия
Название английское:
Subs for casing and tubing. Specifications
Даты и сроки
Дата регистрации:
05-30-18
Дата издания:
07-26-18
Дата введения в действие:
02-01-19
Дата завершения срока действия:
-
Применение и описание
Область и условия применения:
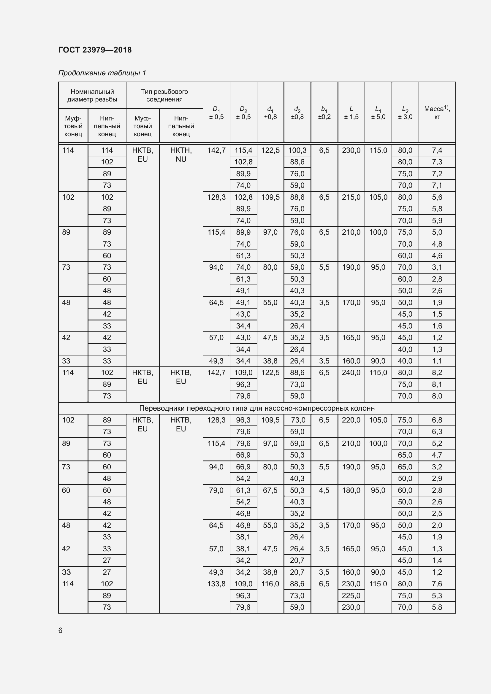
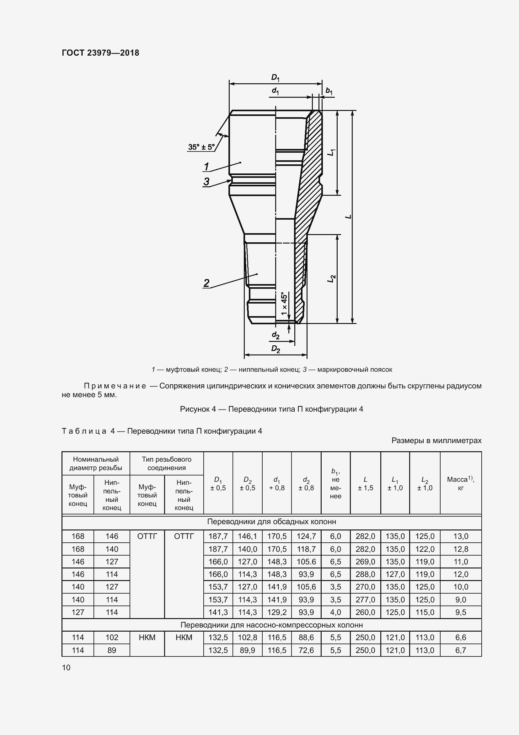
Настоящий стандарт распространяется на переводники, предназначенные для соединения между собой элементов обсадных или насосно-компрессорных колонн, имеющих концы различных наружных диаметров с резьбовыми соединениями одного или различного типа, или одного наружного диаметра с резьбовыми соединениями различного типа. Переводники могут также применяться для присоединения оборудования, используемого в составе обсадных и насосно-компрессорных колонн на нефтяных и газовых скважинах
Связи и замены
Заменяющий:
-
Взамен:
ГОСТ 23979-80
Описание стандарта
ГОСТ 23979-2018 Переводники для обсадных и насосно-компрессорных колонн. Технические условия
Страницы стандарта









































Приложение №1: Поправка к ГОСТ 23979-2018 Обозначение: Поправка к ГОСТ 23979-2018 Дата введения в действие: 30.12.2021
