ГОСТ Р 53677-2009 Нефтяная и газовая промышленность. Кожухотрубчатые теплообменники. Технические требования
ГОСТ Р
Скачать ГОСТ в PDF или DOC бесплатно
Основная информация
Обозначение:
ГОСТ Р 53677-2009
Статус:
Отменен
Тип:
ГОСТ Р
Название русское:
Нефтяная и газовая промышленность. Кожухотрубчатые теплообменники. Технические требования
Название английское:
Petroleum and natural gas industries. Shell-and-tube heat eхchangers. Technical requirements
Даты и сроки
Дата издания:
03-30-11
Дата введения в действие:
01-01-11
Дата завершения срока действия:
01-01-14
Применение и описание
Область и условия применения:
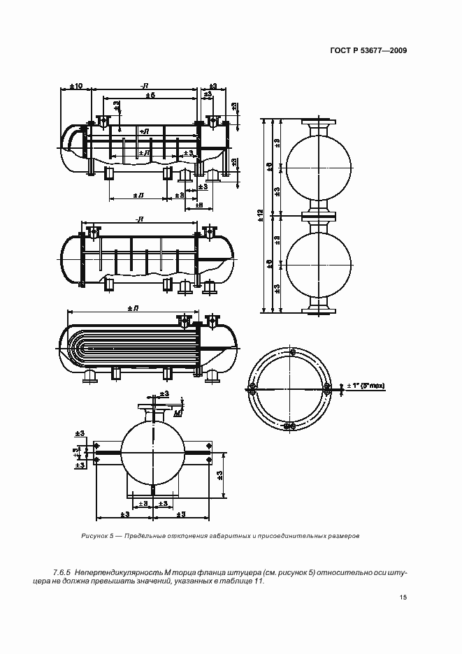
Настоящий стандарт устанавливает требования к конструкции, материалам, изготовлению, контролю, испытаниям и подготовке к отгрузке стальных кожухотрубчатых теплообменных аппаратов, предназначенных для применения в нефтяной, нефтеперерабатывающей, нефтехимической, химической, газовой и других смежных отраслях промышленности. Настоящий стандарт применим к следующим типам аппаратов теплообменных кожухотрубчатых стальных: теплообменникам, конденсаторам, холодильникам и испарителям, работающим под расчетным давлением не более 21 МПа, под вакуумом с остаточным давлением не ниже 665 Па (5 мм рт. ст.) при температуре стенки не ниже минус 70 (град.) С. Настоящий стандарт не применим к поверхностным вакуумным конденсаторам водяного пара и нагревателям питательной воды
Связи и замены
Заменяющий:
-
Изменения и переиздания
Список изменений:
№0 от (рег. ) «Текстовое изменение; Изменено заглавие»
Описание стандарта
ГОСТ Р 53677-2009 Нефтяная и газовая промышленность. Кожухотрубчатые теплообменники. Технические требования
Страницы стандарта







































