ГОСТы >
75.200 Оборудование для переработки нефти, нефтяных продуктов и природного газа >
ГОСТ Р 58618-2019
ГОСТ Р 58618-2019 Магистральный трубопроводный транспорт нефти и нефтепродуктов. Оборудование резервуарное. Клапаны дыхательные и предохранительные. Общие технические условия
ГОСТ Р
Скачать ГОСТ в PDF или DOC бесплатно
Основная информация
Обозначение:
ГОСТ Р 58618-2019
Статус:
Действует
Тип:
ГОСТ Р
Название русское:
Магистральный трубопроводный транспорт нефти и нефтепродуктов. Оборудование резервуарное. Клапаны дыхательные и предохранительные. Общие технические условия
Название английское:
Trunk pipeline transport of oil and oil products. Storage tank equipment. Breather and emergency valves. General specifications
Даты и сроки
Дата издания:
11-29-19
Дата введения в действие:
08-01-20
Дата завершения срока действия:
-
Применение и описание
Область и условия применения:
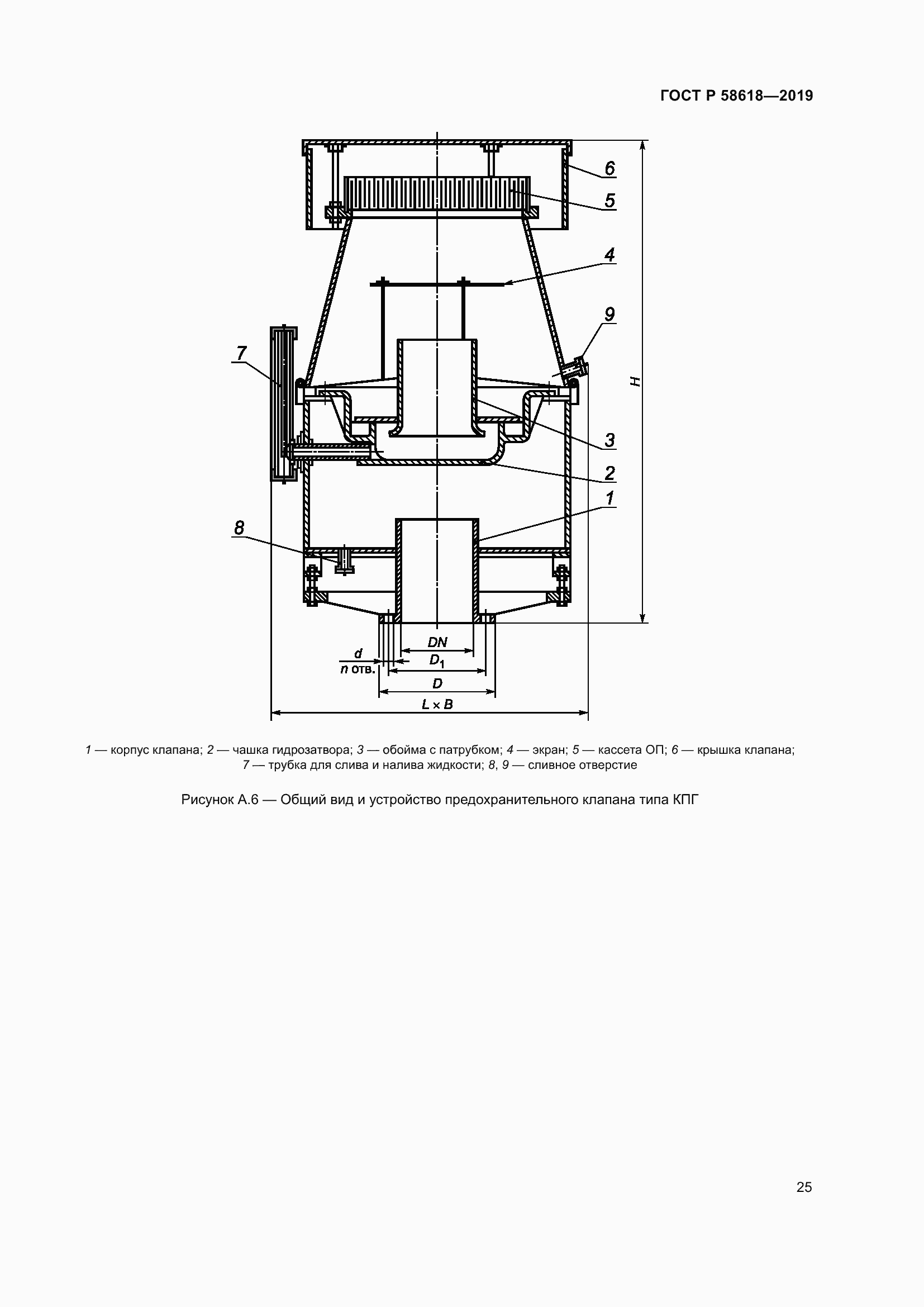
Настоящий стандарт распространяется на дыхательные и предохранительные, в том числе аварийные, клапаны, предназначенные для вертикальных цилиндрических стальных резервуаров без понтона или плавающей крыши, железобетонных резервуаров со стационарной крышей без понтона и применяемые на объектах магистрального трубопровода для транспортировки нефти и нефтепродуктов
Связи и замены
Заменяющий:
-
Описание стандарта
ГОСТ Р 58618-2019 Магистральный трубопроводный транспорт нефти и нефтепродуктов. Оборудование резервуарное. Клапаны дыхательные и предохранительные. Общие технические условия
Страницы стандарта































