ГОСТ 18576-96 Контроль неразрушающий. Рельсы железнодорожные. Методы ультразвуковые
ГОСТ
Скачать ГОСТ в PDF или DOC бесплатно
Основная информация
Обозначение:
ГОСТ 18576-96
Статус:
Действует
Тип:
ГОСТ
Название русское:
Контроль неразрушающий. Рельсы железнодорожные. Методы ультразвуковые
Название английское:
Nondestructive testing. Railway rails. Ultrasonic testing methods
Даты и сроки
Дата регистрации:
10-04-96
Дата издания:
11-27-01
Дата введения в действие:
01-01-02
Дата завершения срока действия:
-
Применение и описание
Область и условия применения:
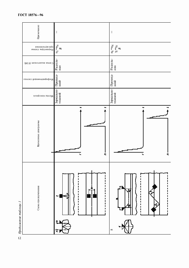
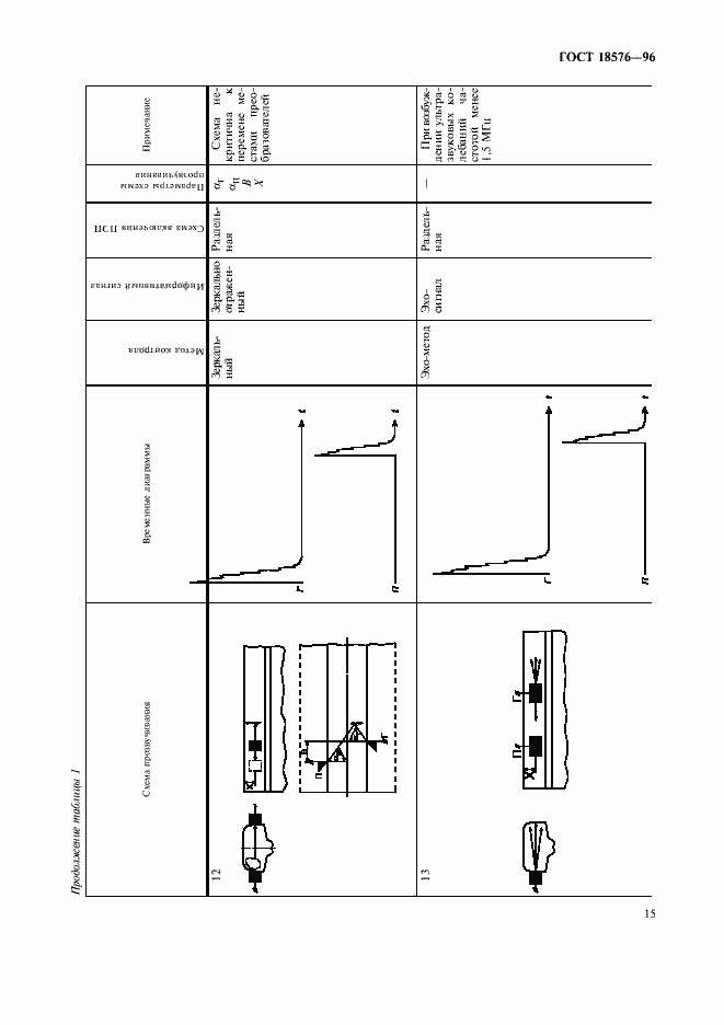
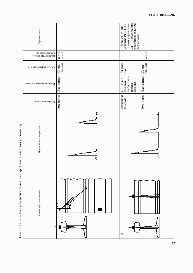
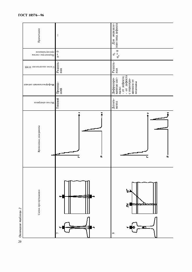
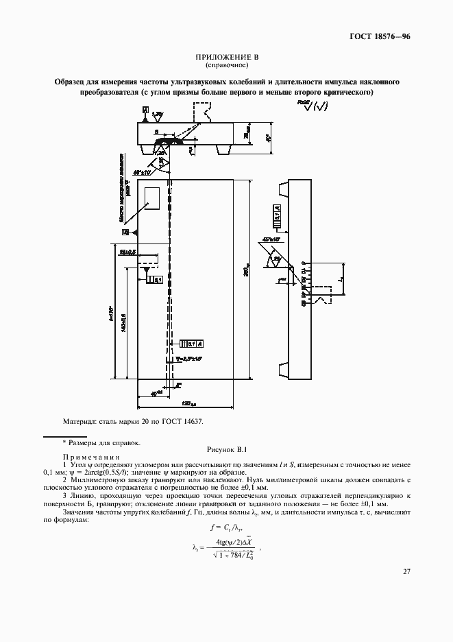
Настоящий стандарт распространяется на рельсы типа Р50 по ГОСТ 7174, Р65 по ГОСТ 8161 и Р75 по ГОСТ 16210 при их изготовлении, эксплуатации и ремонте (восстановлении) и устанавливает методы при ручном и механизированном ультразвуковом контроле для выявления в головке, шейке и зоне продолжения шейки в подошву рельсов внутренних дефектов (расслоений, флокенов, раковин, неметаллических и инородных включений, трещин, дефектов электроконтактной сварки) в пределах чувствительности контроля, а также зон аномальных механических напряжений в рельсах. Тип и реальные размеры дефектов не определяются. Допускается распространять положения настоящего стандарта на контроль рельсов других типов. Стандарт не устанавливает методы ультразвукового контроля наплавки
Связи и замены
Заменяющий:
-
Взамен:
ГОСТ 18576-85
Описание стандарта
ГОСТ 18576-96 Контроль неразрушающий. Рельсы железнодорожные. Методы ультразвуковые
Страницы стандарта






























