ГОСТ 6563-75 Изделия технические из благородных металлов и сплавов. Технические условия
ГОСТ
Скачать ГОСТ в PDF или DOC бесплатно
Основная информация
Обозначение:
ГОСТ 6563-75
Статус:
Заменен
Тип:
ГОСТ
Название русское:
Изделия технические из благородных металлов и сплавов. Технические условия
Название английское:
Technical articles made of noble metals and their alloys. Specifications
Даты и сроки
Дата издания:
12-01-08
Дата введения в действие:
01-01-77
Дата завершения срока действия:
01-01-18
Применение и описание
Область и условия применения:
Настоящий стандарт распространяется на технические изделия из благородных металлов и сплавов, в том числе лабораторную посуду и принадлежности, применяемые в различных отраслях промышленности и науки
Связи и замены
Заменяющий:
ГОСТ 6563-2016
Взамен:
ГОСТ 6563-58
Изменения и переиздания
Список изменений:
№0 от (рег. ) «Ограничение срока действия снято» №1 от (рег. ) «Поправка» №2 от (рег. ) «Срок действия продлен» №3 от (рег. ) «Текстовое изменение; Изменены ссылочные НД»
Описание стандарта
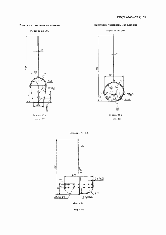
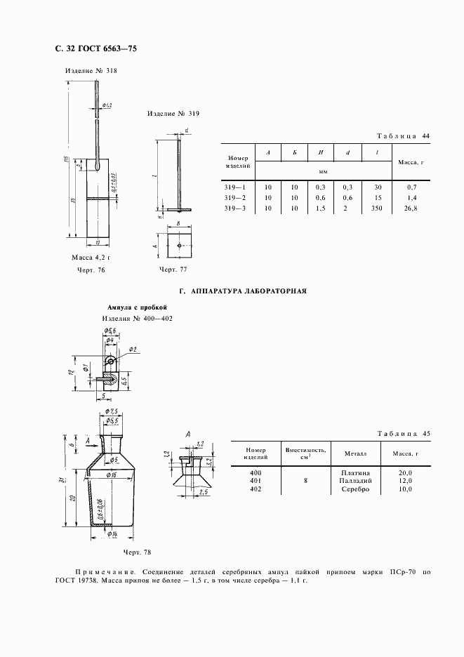
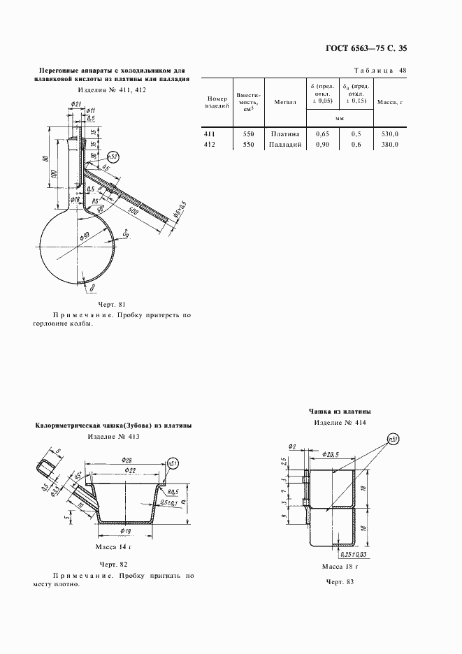
ГОСТ 6563-75 Изделия технические из благородных металлов и сплавов. Технические условия
Страницы стандарта

















































Приложение №1: Изменение к ГОСТ 6563-75. Поправка к изменению Обозначение: Изменение к ГОСТ 6563-75. Поправка к изменению Дата введения в действие: 01.06.2006

Приложение №4: Изменение №3 к ГОСТ 6563-75 Обозначение: Изменение №3 к ГОСТ 6563-75 Дата введения в действие: 01.06.2006
