ГОСТ 32998.6-2014 Стеклопакеты клееные. Правила и методы обеспечения качества продукции
ГОСТ
Скачать ГОСТ в PDF или DOC бесплатно
Основная информация
Обозначение:
ГОСТ 32998.6-2014
Статус:
Заменен
Тип:
ГОСТ
Название русское:
Стеклопакеты клееные. Правила и методы обеспечения качества продукции
Название английское:
Insulating glass units. Rules and methods of products quality assurance
Даты и сроки
Дата регистрации:
12-05-14
Дата издания:
07-17-15
Дата введения в действие:
04-01-16
Дата завершения срока действия:
07-01-25
Применение и описание
Область и условия применения:
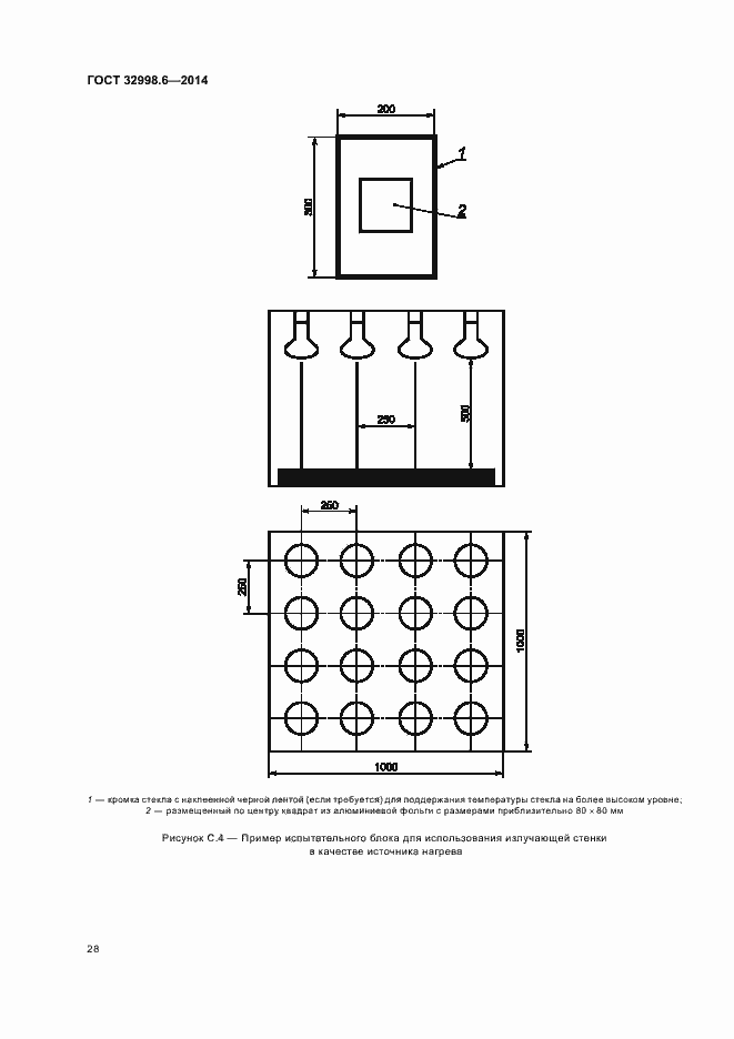
Настоящий стандарт распространяется на стеклопакеты, которые посредством подтверждения соответствия настоящему стандарту обеспечивают: - энергосбережение в связи с тем, что предотвращается существенное изменение коэффициента теплопередачи и солнечного фактора; - охрану здоровья ввиду того, что предотвращается существенное изменение звукоизоляции и пропускания света; - безопасность вследствие того, что предотвращается существенное изменение механической прочности. Настоящий стандарт применяют для изделий из стекла с электропроводкой или соединениями, например, для сигнализации или систем нагрева, если разность электрических потенциалов проводки с землей менее 50 В для переменного тока или 75 В для постоянного тока. Основной областью применения стеклопакетов является их использование в конструкциях зданий и сооружений, таких как: окна, двери, наружные стены, крыши и перегородки, где предотвращено попадание прямого ультрафиолетового излучения на кромки стеклопакетов
Связи и замены
Заменяющий:
ГОСТ 32998.6-2024
Описание стандарта
ГОСТ 32998.6-2014 Стеклопакеты клееные. Правила и методы обеспечения качества продукции
Страницы стандарта













































