ГОСТ 20901-75 Изделия огнеупорные и высокоогнеупорные для кладки воздухонагревателей и воздухопроводов горячего дутья доменных печей. Технические условия
ГОСТ
Скачать ГОСТ в PDF или DOC бесплатно
Основная информация
Обозначение:
ГОСТ 20901-75
Статус:
Заменен
Тип:
ГОСТ
Название русское:
Изделия огнеупорные и высокоогнеупорные для кладки воздухонагревателей и воздухопроводов горячего дутья доменных печей. Технические условия
Название английское:
Refractory and high-refractory products for laying of stoves and hot blast mains of blast furnaces. Specifications
Даты и сроки
Дата издания:
10-01-04
Дата введения в действие:
01-01-77
Дата завершения срока действия:
01-01-17
Применение и описание
Область и условия применения:
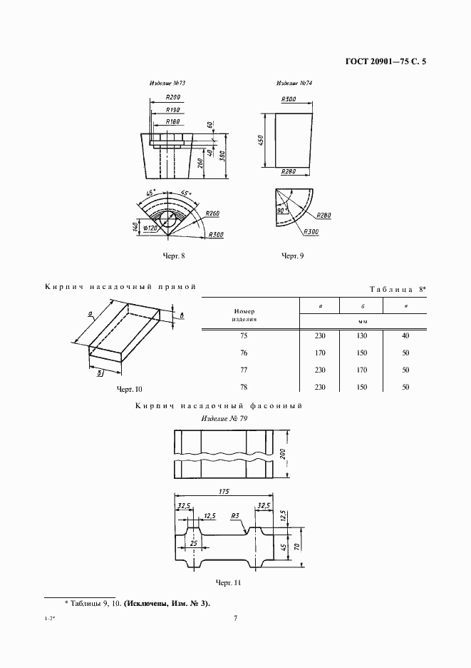
Настоящий стандарт распространяется на огнеупорные динасовые, шамотные и высокоогнеупорные муллитокремнеземистые, муллитокорундовые изделия, предназначенные для кладки воздухонагревателей, воздухопроводов горячего дутья, штуцеров и фурменных приборов доменных печей
Связи и замены
Заменяющий:
ГОСТ 20901-2016
Взамен:
ГОСТ 1599-53;ГОСТ 13826-68;ГОСТ 13836-68
Изменения и переиздания
Список изменений:
№1 от (рег. ) «Срок действия продлен» №2 от (рег. ) «Срок действия продлен» №3 от (рег. ) «Срок действия продлен» №4 от (рег. ) «Срок действия продлен» №5 от (рег. ) «Срок действия продлен»
Описание стандарта
ГОСТ 20901-75 Изделия огнеупорные и высокоогнеупорные для кладки воздухонагревателей и воздухопроводов горячего дутья доменных печей. Технические условия
Страницы стандарта















