ГОСТ 8691-73 Изделия огнеупорные общего назначения. Форма и размеры
ГОСТ
Скачать ГОСТ в PDF или DOC бесплатно
Основная информация
Обозначение:
ГОСТ 8691-73
Статус:
Заменен
Тип:
ГОСТ
Название русское:
Изделия огнеупорные общего назначения. Форма и размеры
Название английское:
General-purpose refractory articles. Form and dimensions
Даты и сроки
Дата издания:
07-01-05
Дата введения в действие:
01-01-75
Дата завершения срока действия:
02-01-19
Применение и описание
Область и условия применения:
Настоящий стандарт распространяется на огнеупорные изделия общего назначения, применяемые для кладки различных тепловых агрегатов
Связи и замены
Заменяющий:
ГОСТ 8691-2018
Взамен:
ГОСТ 8691-58
Изменения и переиздания
Список изменений:
№1 от (рег. ) «Срок действия продлен» №2 от (рег. ) «Срок действия продлен» №3 от (рег. ) «Поправка» №4 от (рег. ) «Поправка»
Описание стандарта
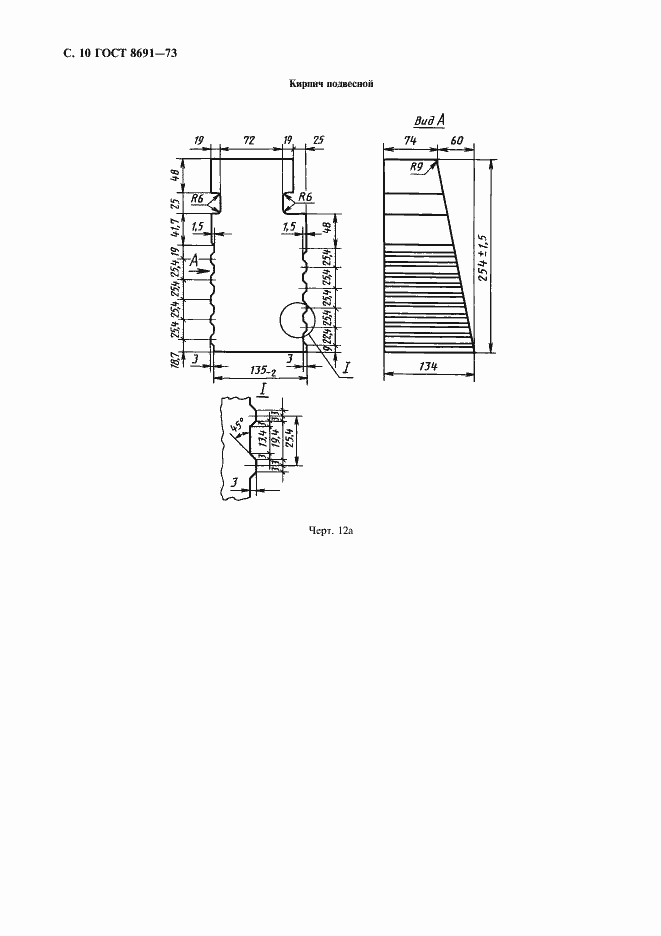
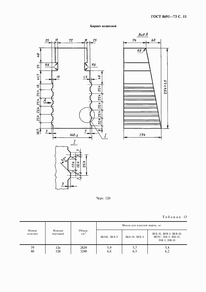
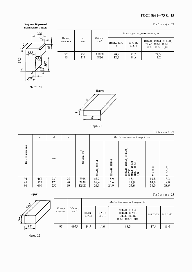
ГОСТ 8691-73 Изделия огнеупорные общего назначения. Форма и размеры
Страницы стандарта



















