ГОСТ ISO 2478-2013 Изделия огнеупорные плотные. Определение остаточных изменений размеров при нагреве
ГОСТ ИСО
Скачать ГОСТ в PDF или DOC бесплатно
Основная информация
Обозначение:
ГОСТ ISO 2478-2013
Статус:
Действует
Тип:
ГОСТ ИСО
Название русское:
Изделия огнеупорные плотные. Определение остаточных изменений размеров при нагреве
Название английское:
Dense shaped refractory products. Determination of permanent change in dimensions on heating
Даты и сроки
Дата регистрации:
12-27-13
Дата издания:
10-01-14
Дата введения в действие:
01-01-15
Дата завершения срока действия:
-
Применение и описание
Область и условия применения:
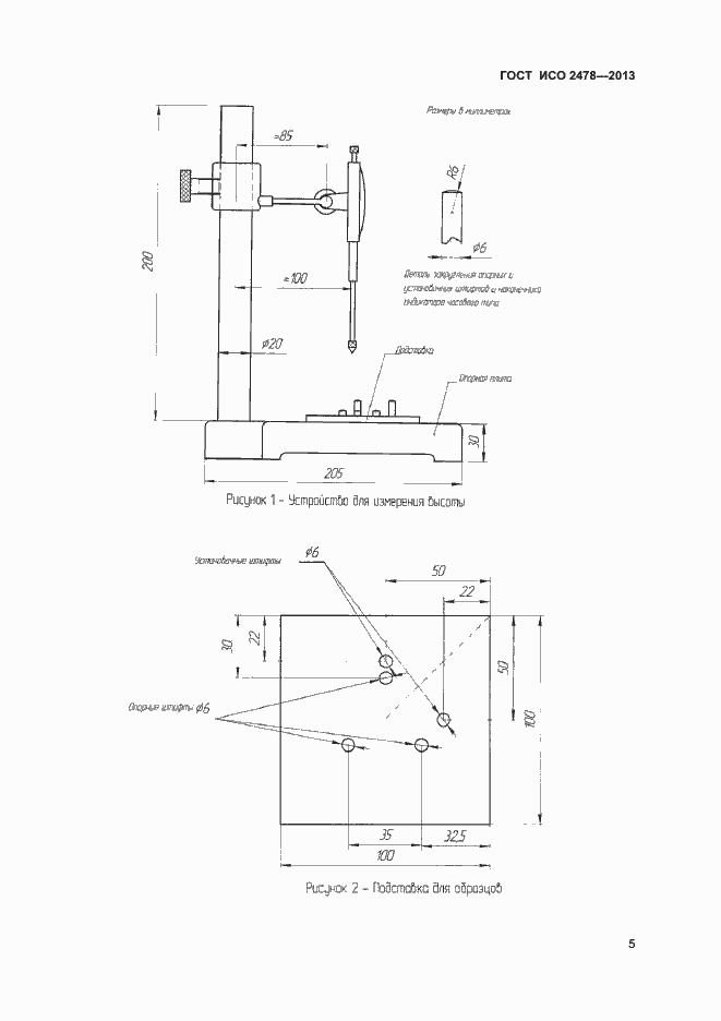
Настоящий стандарт устанавливает два метода определения остаточных изменений размеров при нагреве плотного огнеупорного изделия. Методы не распространяются на изделия, содержащие углерод
Связи и замены
Заменяющий:
-
Описание стандарта
ГОСТ ISO 2478-2013 Изделия огнеупорные плотные. Определение остаточных изменений размеров при нагреве
Страницы стандарта







