ГОСТ Р 57954-2017 Пластмассы. Метод определения энергии удара по Гарднеру
ГОСТ Р
Скачать ГОСТ в PDF или DOC бесплатно
Основная информация
Обозначение:
ГОСТ Р 57954-2017
Статус:
Действует
Тип:
ГОСТ Р
Название русское:
Пластмассы. Метод определения энергии удара по Гарднеру
Название английское:
Plastics. Determination of the mean-failure energy by Gardner method
Даты и сроки
Дата издания:
12-11-17
Дата введения в действие:
05-01-18
Дата завершения срока действия:
-
Применение и описание
Область и условия применения:
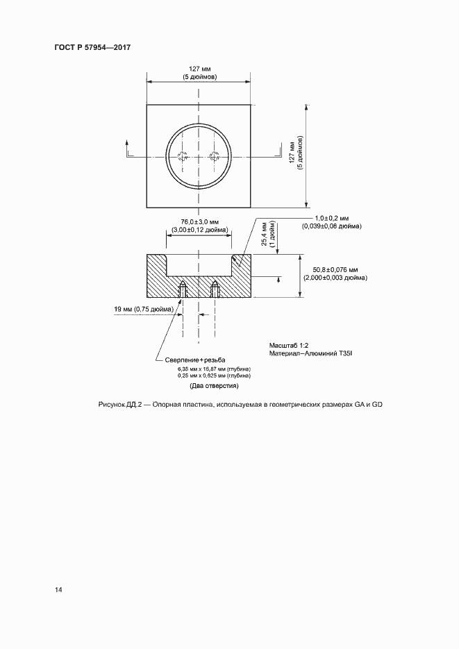
Настоящий стандарт распространяется на плоские жесткие пластмассы и устанавливает метод определения средней энергии разрушения, осуществляемой падающим грузом установленной массы с применением бойков и опорных плит определенных геометрических размеров (метод Гарднера). Настоящий стандарт применим к следующим материалам: - жестким термопластичным материалам для формования и экструзии, включая наполненные армированные композиции (например, короткими волокнами, небольшими стержнями, пластинами или гранулами), листы из жестких и полужестких термопластичных материалов; - жестким термореактивным формовочным материалам, включая наполненные и армированные композиции, листы из жестких термореактивных материалов. Метод, установленный настоящим стандартом, не распространяется на материалы, армированные текстильными волокнами, полимерные композиты, армированные волокном, и слоистые пластмассы, жесткие ячеистые материалы, и многослойные структуры, содержащие ячеистые материалы или резину
Связи и замены
Заменяющий:
-
Описание стандарта
ГОСТ Р 57954-2017 Пластмассы. Метод определения энергии удара по Гарднеру
Страницы стандарта





























