ГОСТ 12506-81 Окна деревянные для производственных зданий. Типы, конструкция и размеры
ГОСТ
Скачать ГОСТ в PDF или DOC бесплатно
Основная информация
Обозначение:
ГОСТ 12506-81
Статус:
Заменен
Тип:
ГОСТ
Название русское:
Окна деревянные для производственных зданий. Типы, конструкция и размеры
Название английское:
Wooden windows for production buildings. Types, structure and dimensions
Даты и сроки
Дата издания:
07-01-00
Дата введения в действие:
01-01-84
Дата завершения срока действия:
02-01-23
Применение и описание
Область и условия применения:
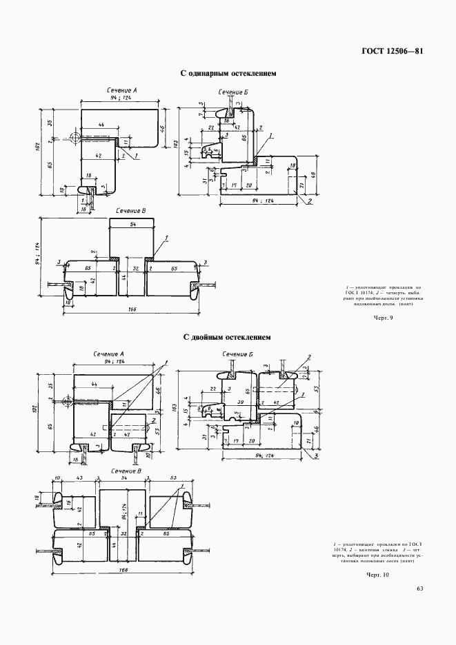
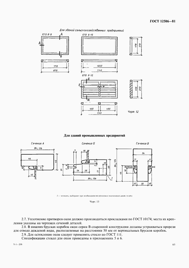
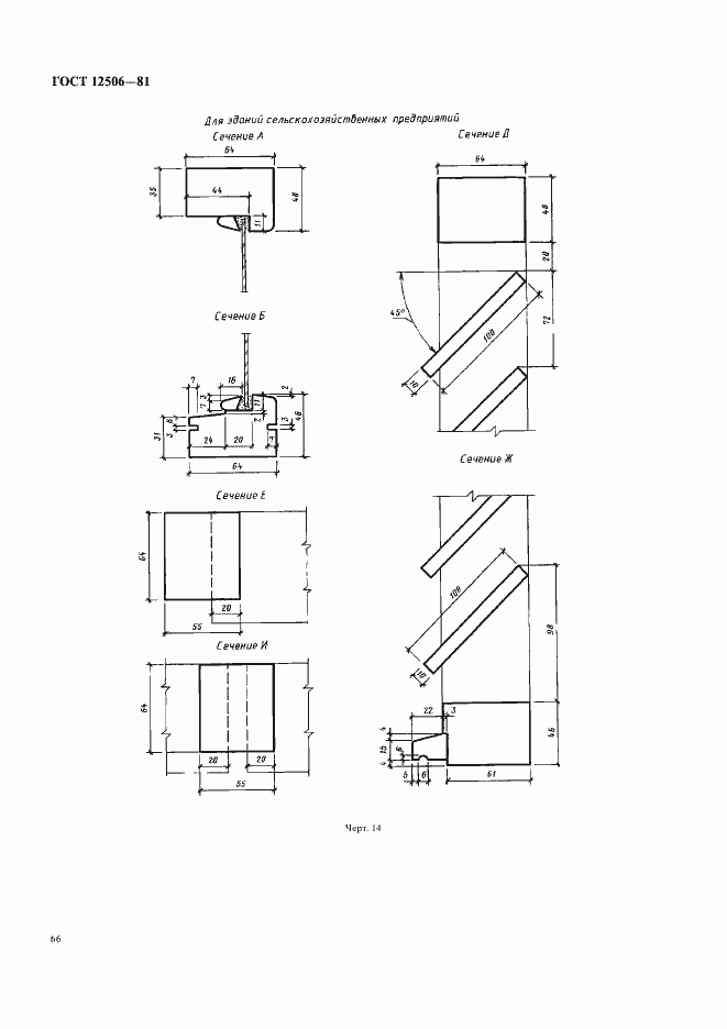
Настоящий стандарт распространяется на деревянные окна, предназначенные для заполнения проемов в производственных и вспомогательных зданиях промышленных и сельскохозяйственных предприятий
Связи и замены
Заменяющий:
ГОСТ 34914-2022
Взамен:
ГОСТ 12506-67;ГОСТ 16407-70
Описание стандарта
ГОСТ 12506-81 Окна деревянные для производственных зданий. Типы, конструкция и размеры
Страницы стандарта
















