ГОСТ 24698-81 Двери деревянные наружные для жилых и общественных зданий. Типы, конструкция и размеры
ГОСТ
Скачать ГОСТ в PDF или DOC бесплатно
Основная информация
Обозначение:
ГОСТ 24698-81
Статус:
Заменен
Тип:
ГОСТ
Название русское:
Двери деревянные наружные для жилых и общественных зданий. Типы, конструкция и размеры
Название английское:
Wooden external doors for dwellings and public buildings. Types, structure and dimensions
Даты и сроки
Дата издания:
10-01-10
Дата введения в действие:
01-01-84
Дата завершения срока действия:
07-01-17
Применение и описание
Область и условия применения:
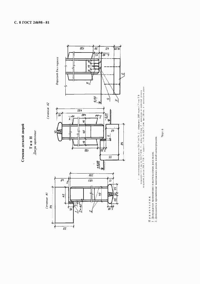
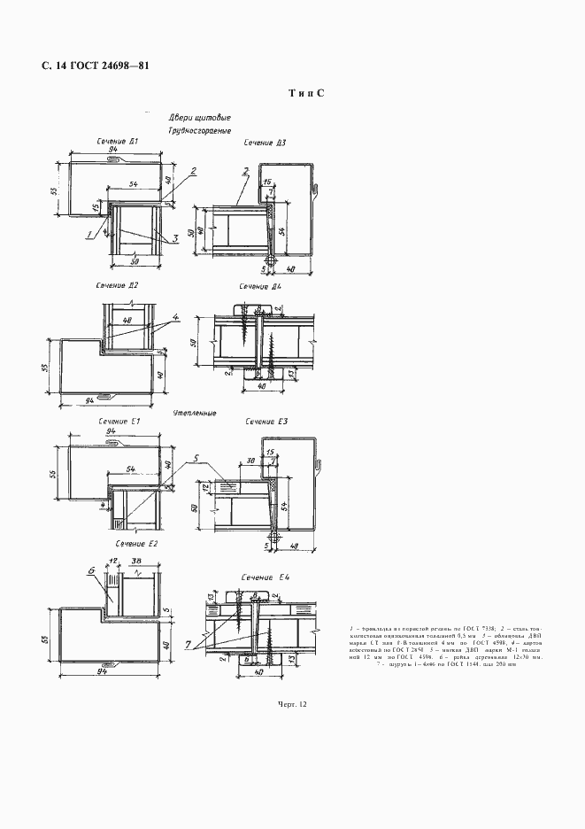
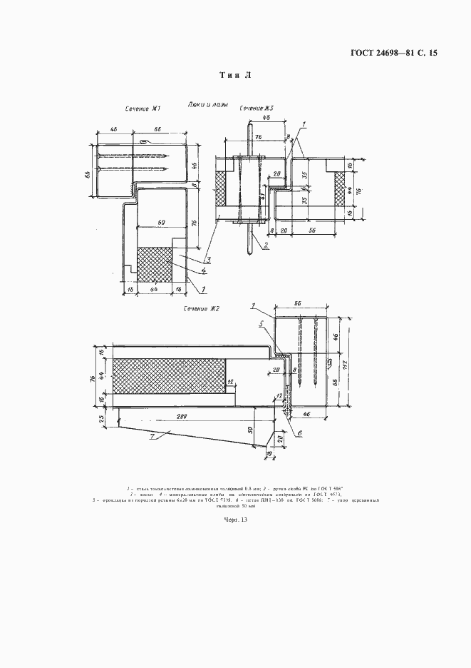
Настоящий стандарт распространяется на деревянные наружные распашные двери для жилых и общественных зданий, а также для вспомогательных зданий и помещений предприятий различных отраслей народного хозяйства. Настоящий стандарт не распространяется на двери уникальных общественных зданий: вокзалов, театров, музеев, спортивных дворцов, выставочных павильонов, дворцов культуры
Связи и замены
Заменяющий:
ГОСТ 475-2016
Описание стандарта
ГОСТ 24698-81 Двери деревянные наружные для жилых и общественных зданий. Типы, конструкция и размеры
Страницы стандарта


















