ГОСТ 25097-2002 Блоки оконные деревоалюминиевые. Технические условия
ГОСТ
Скачать ГОСТ в PDF или DOC бесплатно
Основная информация
Обозначение:
ГОСТ 25097-2002
Статус:
Действует
Тип:
ГОСТ
Название русское:
Блоки оконные деревоалюминиевые. Технические условия
Название английское:
Windows from wood and aluminium. Specifications
Даты и сроки
Дата регистрации:
04-24-02
Дата издания:
03-25-03
Дата введения в действие:
03-01-03
Дата завершения срока действия:
-
Применение и описание
Область и условия применения:
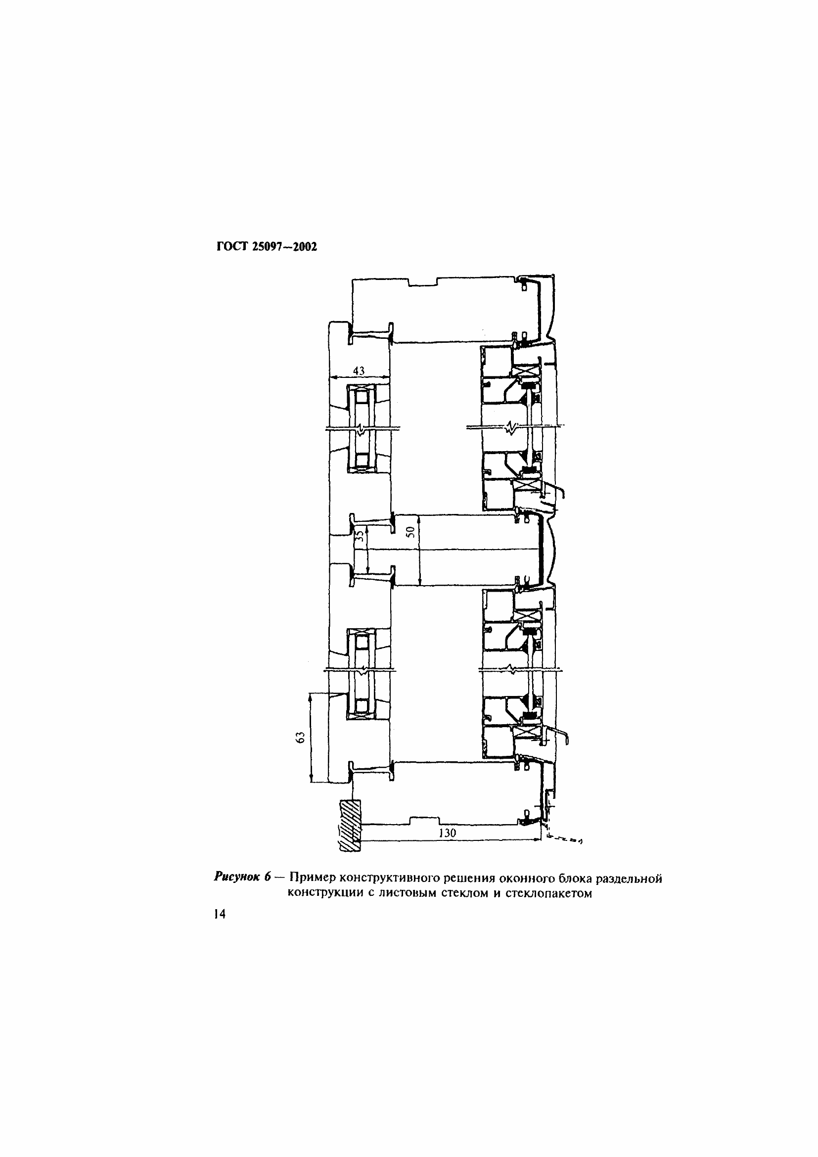
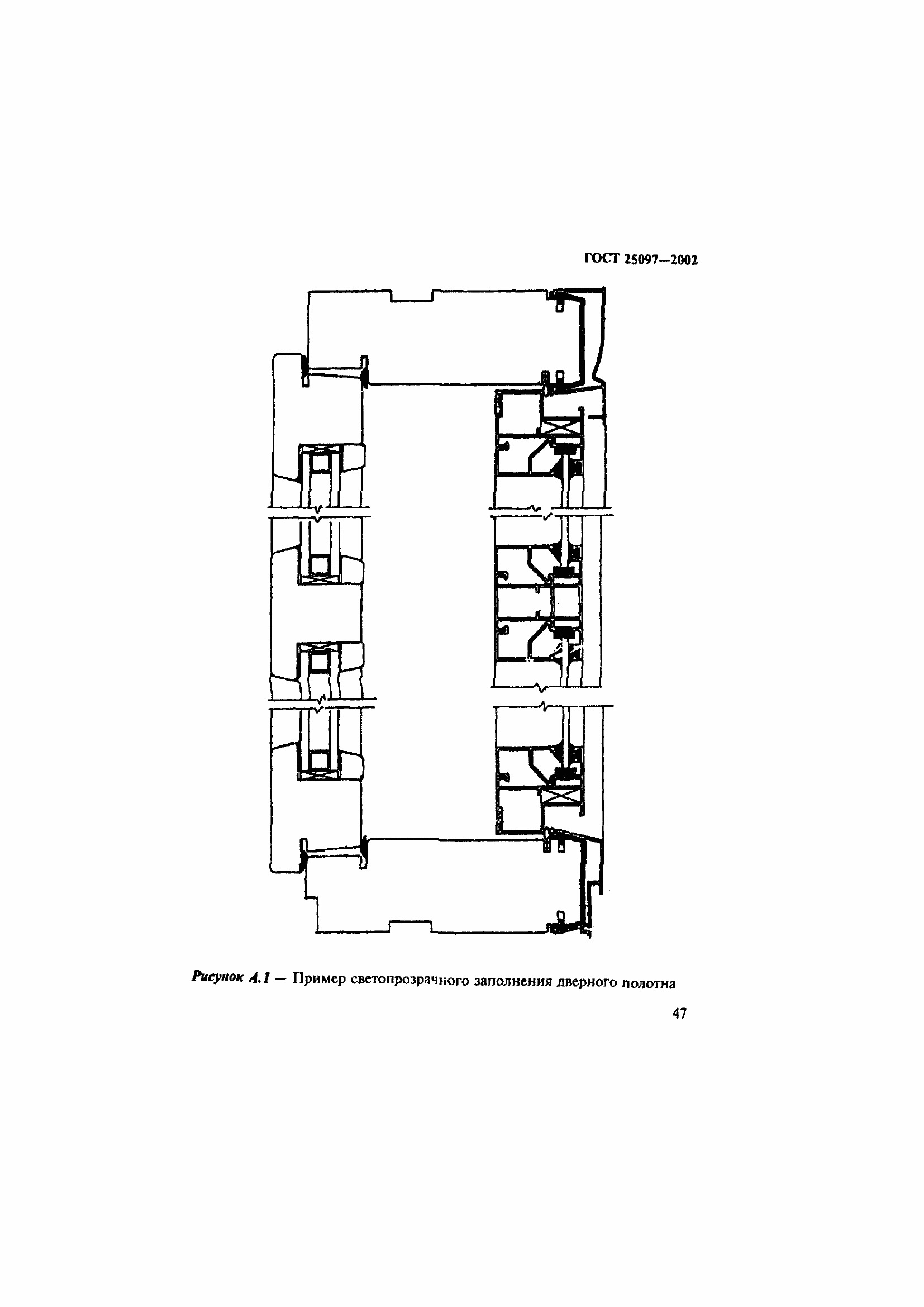
Настоящий стандарт распространяется на оконные и балконные дверные блоки деревоалюминиевые раздельной и спаренной конструкции со стеклами и стеклопакетами для зданий и сооружений различного назначения. Стандарт не распространяется на деревянные оконные блоки с алюминиевой облицовкой и алюминиевые оконные блоки с деревянной облицовкой, а также на изделия специального назначения в части дополнительных требований к пожаробезопасности, защиты от взлома и др. Стандарт может быть применен для целей сертификации
Связи и замены
Заменяющий:
-
Взамен:
ГОСТ 25097-82;ГОСТ 27936-88
Описание стандарта
ГОСТ 25097-2002 Блоки оконные деревоалюминиевые. Технические условия
Страницы стандарта



























































Приложение №1: Поправка к ГОСТ 25097-2002 Обозначение: Поправка к ГОСТ 25097-2002 Дата введения в действие: 29.06.2022
