ГОСТ 26601-85 Окна и балконные двери деревянные для малоэтажных жилых домов. Типы, конструкция и размеры
ГОСТ
Скачать ГОСТ в PDF или DOC бесплатно
Основная информация
Обозначение:
ГОСТ 26601-85
Статус:
Действует
Тип:
ГОСТ
Название русское:
Окна и балконные двери деревянные для малоэтажных жилых домов. Типы, конструкция и размеры
Название английское:
Wooden windows and balcony doors for one-two story dwelling buildings. Types, structur and dimensins
Даты и сроки
Дата издания:
07-01-00
Дата введения в действие:
01-01-86
Дата завершения срока действия:
-
Применение и описание
Область и условия применения:
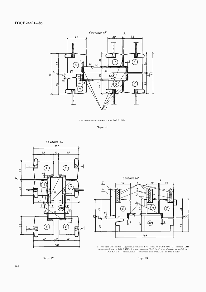
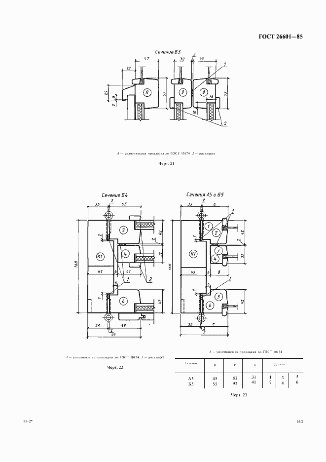
Настоящий стандарт распространяется на деревянные окна и балконные двери с двойным и тройным остеклением, предназначенные для жилых домов высотой не более двух этажей
Связи и замены
Заменяющий:
-
Описание стандарта
ГОСТ 26601-85 Окна и балконные двери деревянные для малоэтажных жилых домов. Типы, конструкция и размеры
Страницы стандарта














