ГОСТ 16289-86 Окна и балконные двери деревянные с тройным остеклением для жилых и общественных зданий. Типы, конструкция и размеры
ГОСТ
Скачать ГОСТ в PDF или DOC бесплатно
Основная информация
Обозначение:
ГОСТ 16289-86
Статус:
Заменен
Тип:
ГОСТ
Название русское:
Окна и балконные двери деревянные с тройным остеклением для жилых и общественных зданий. Типы, конструкция и размеры
Название английское:
Wooden windows and balcony doors of triple glazing for dwelling and public buildings. Types, construction and dimensions
Даты и сроки
Дата издания:
06-01-92
Дата введения в действие:
01-01-87
Дата завершения срока действия:
03-01-04
Применение и описание
Область и условия применения:
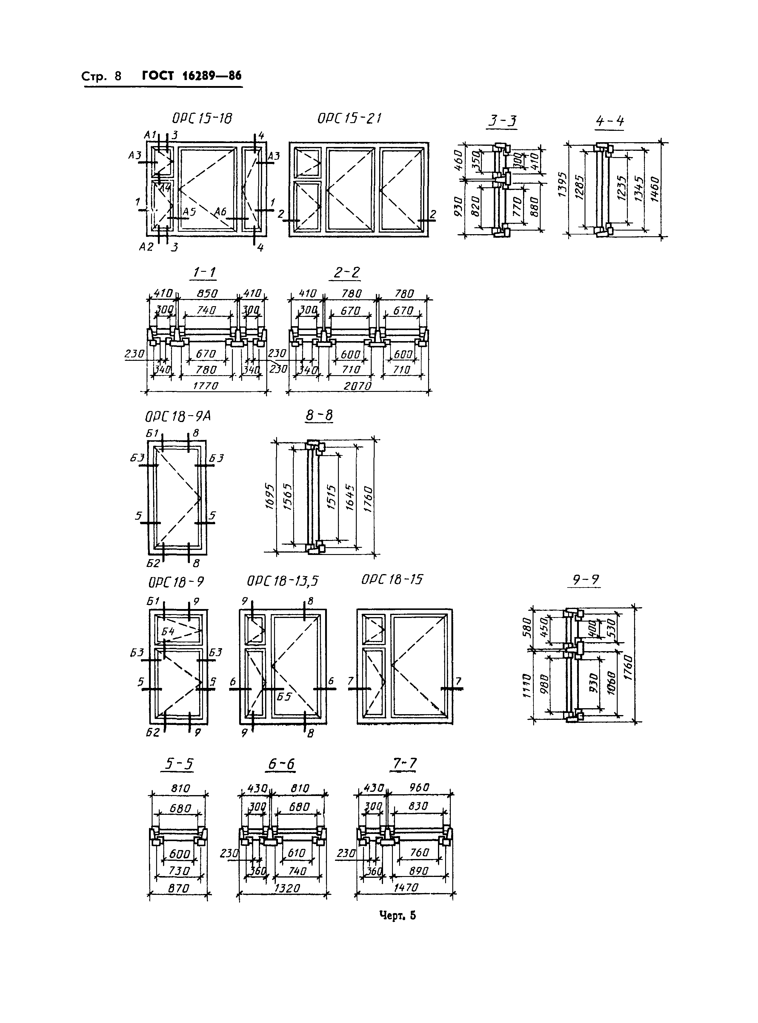
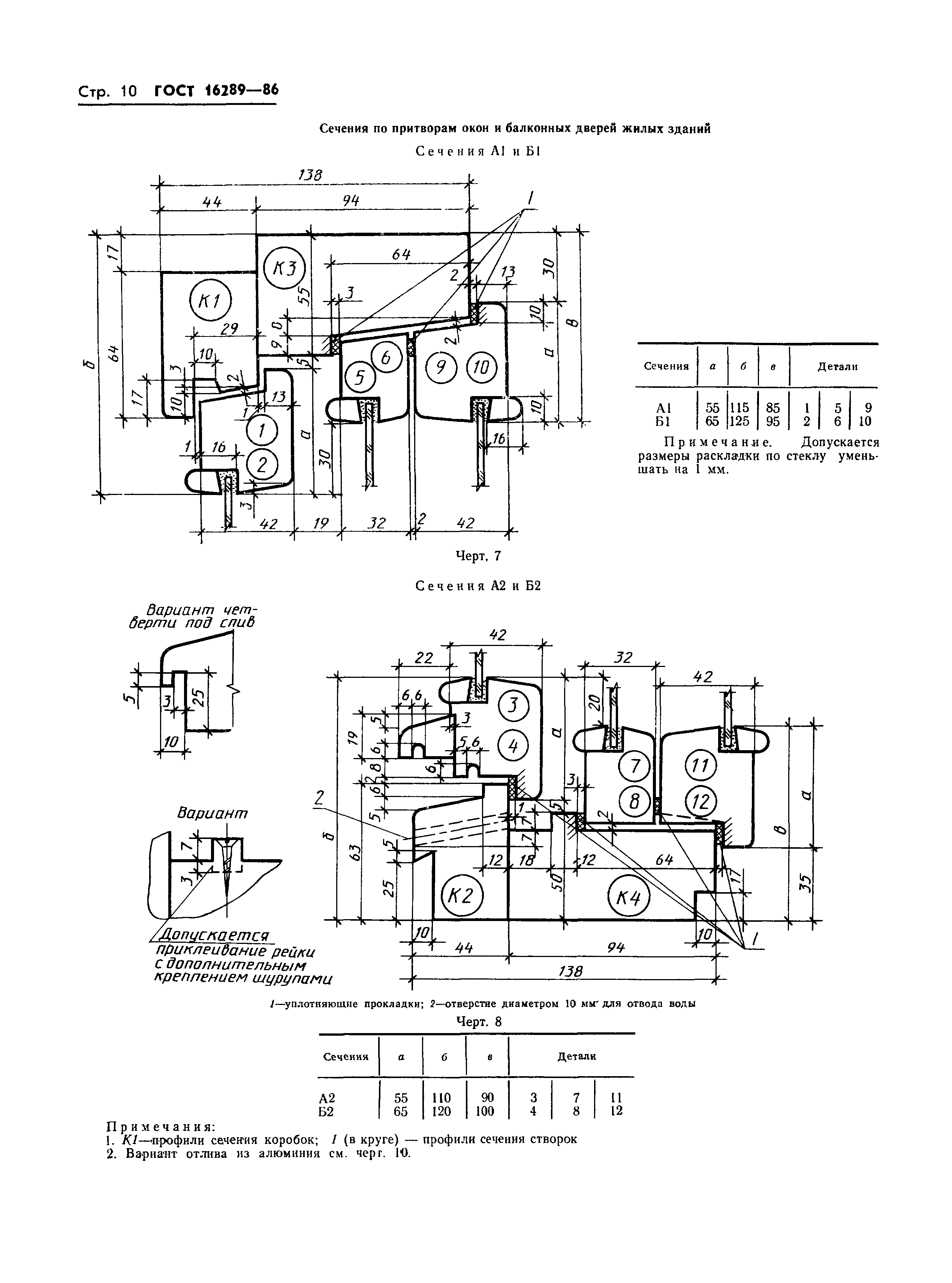
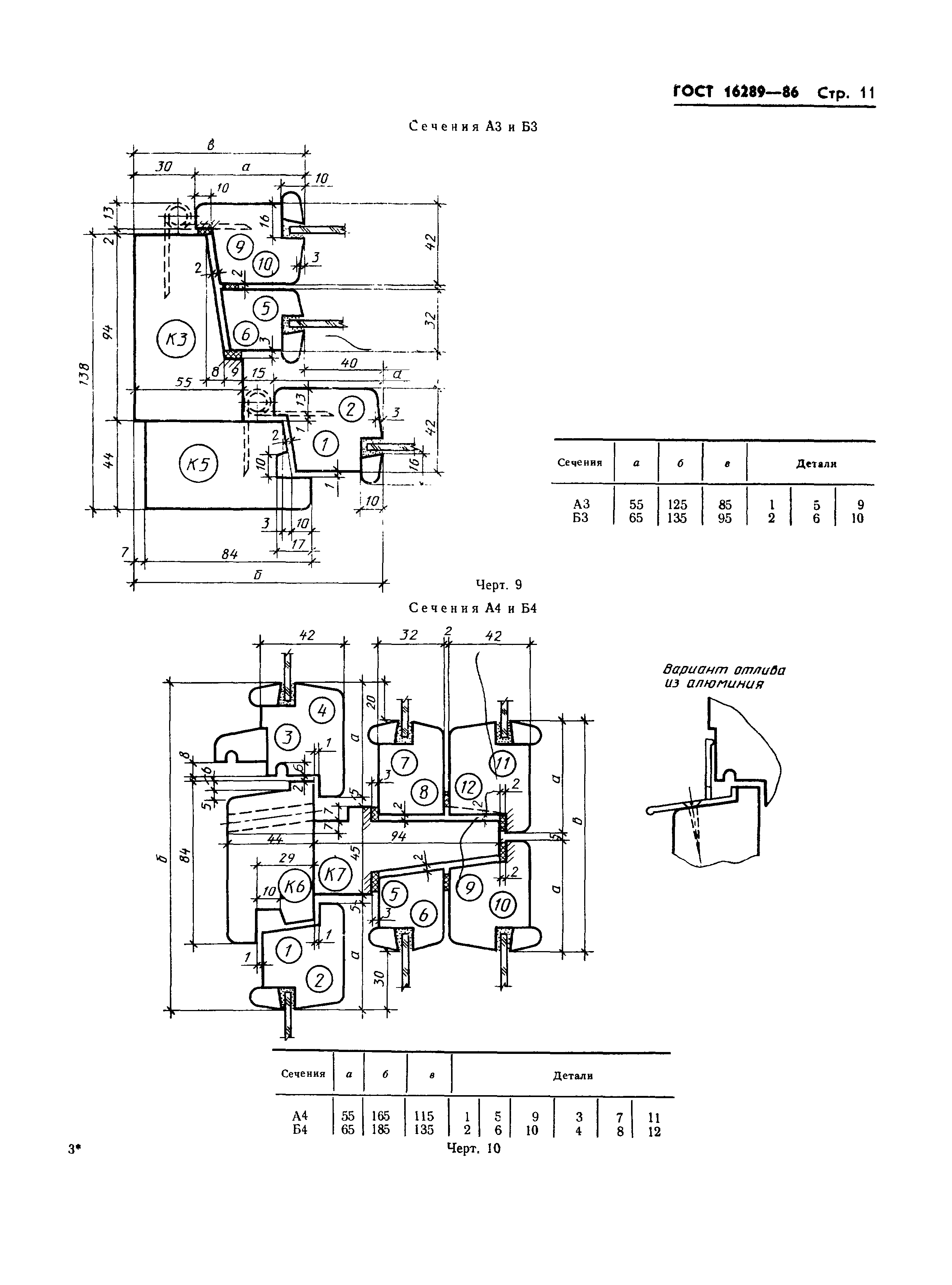
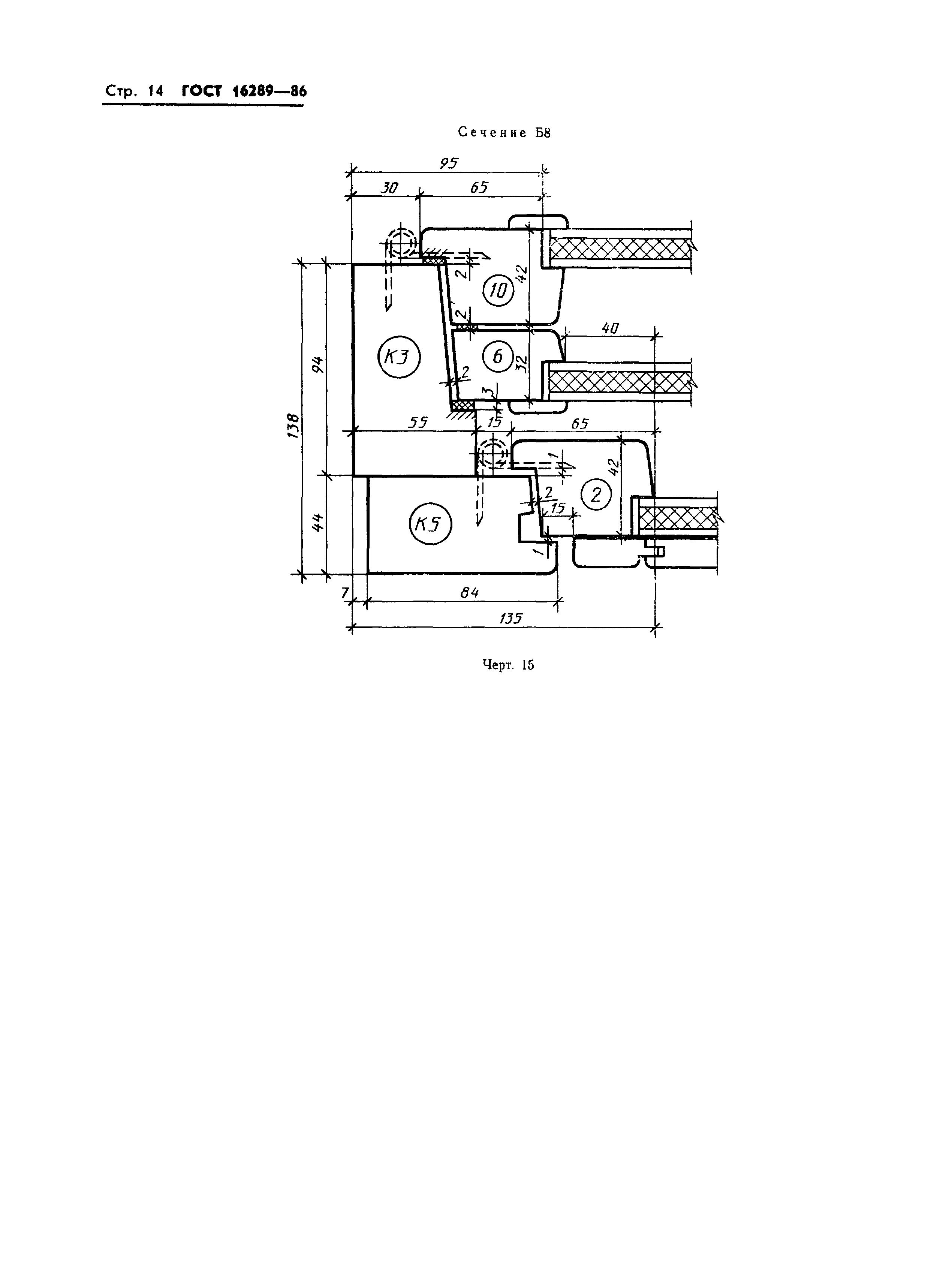
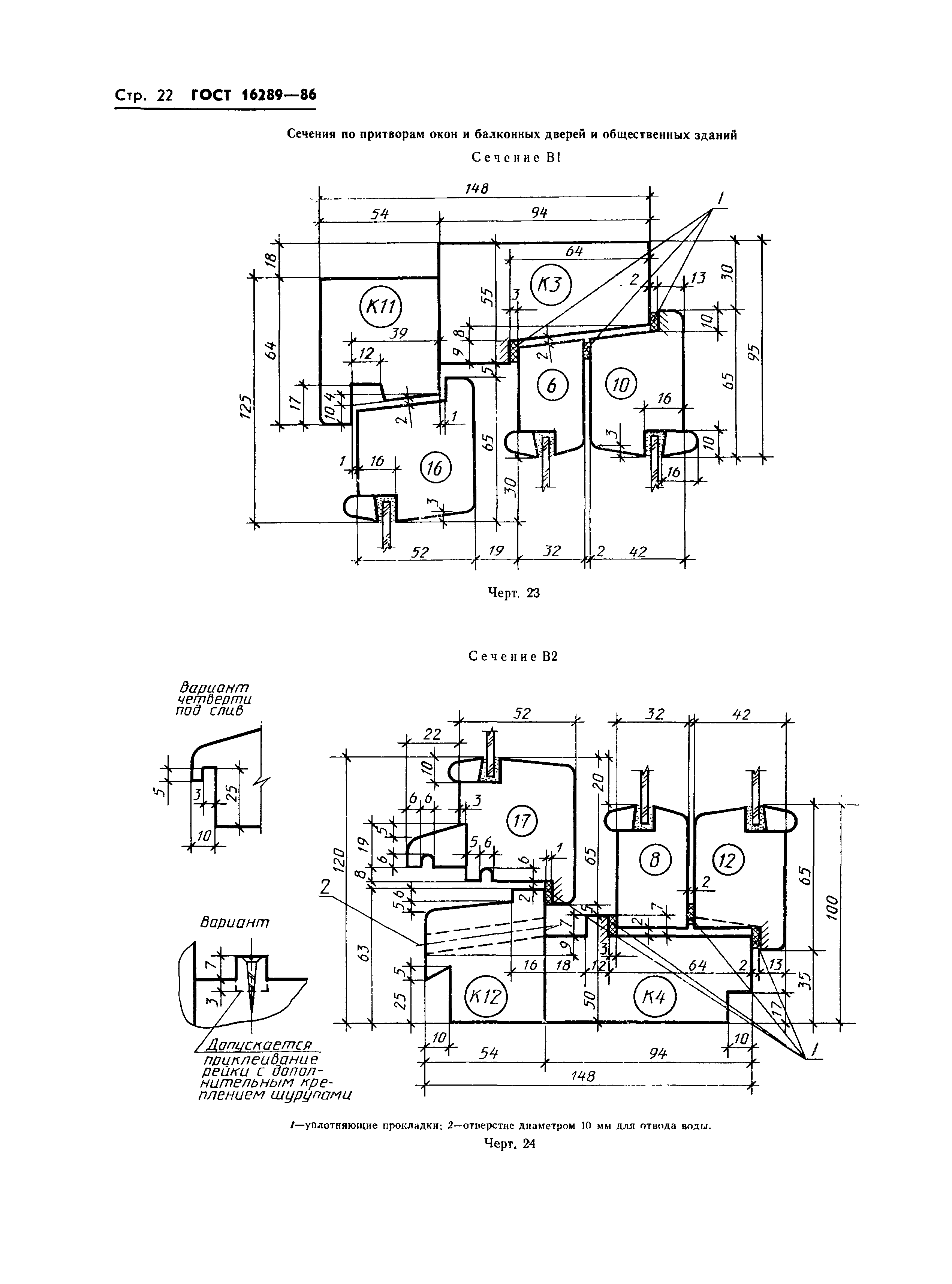
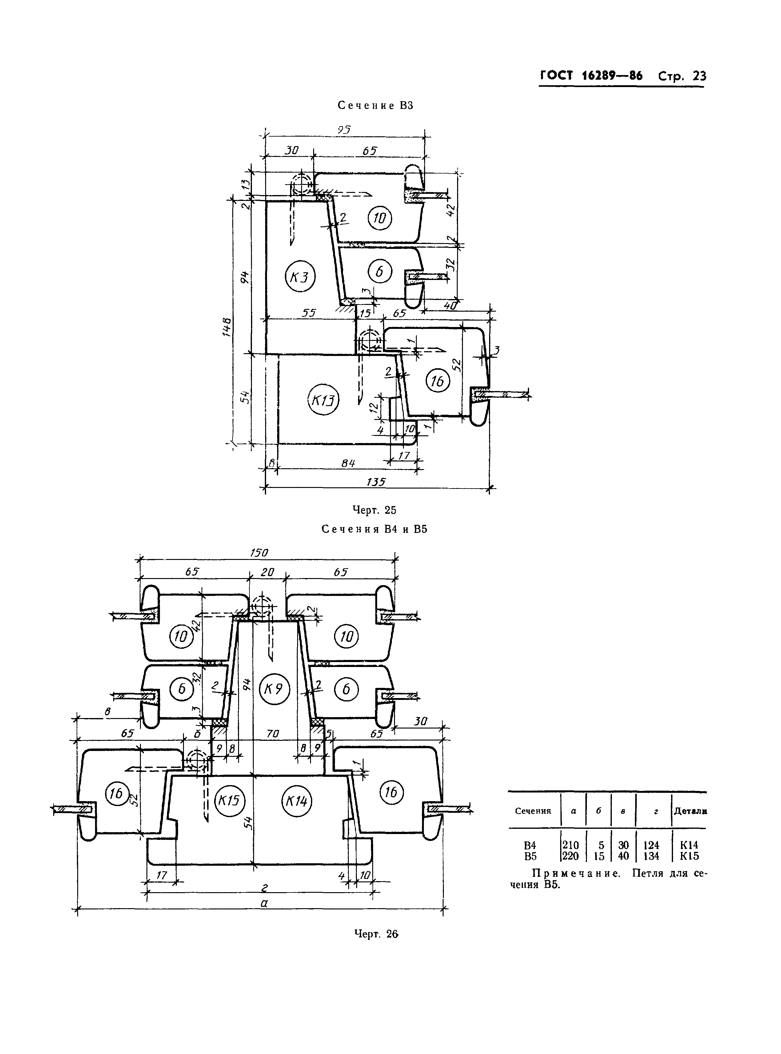
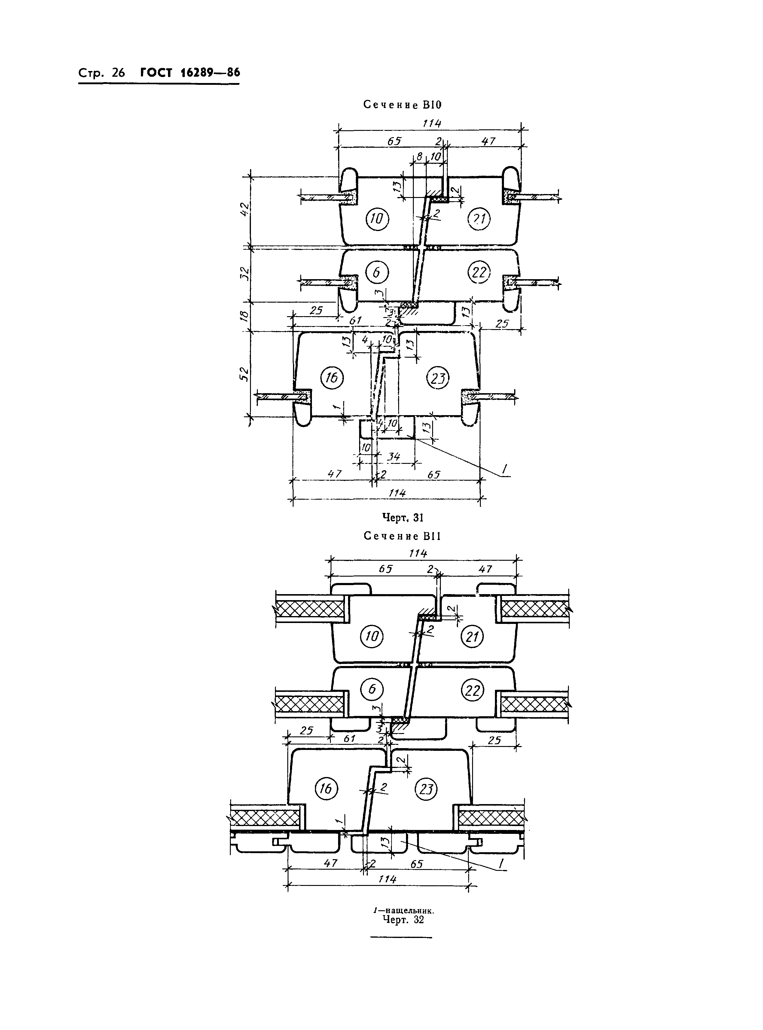
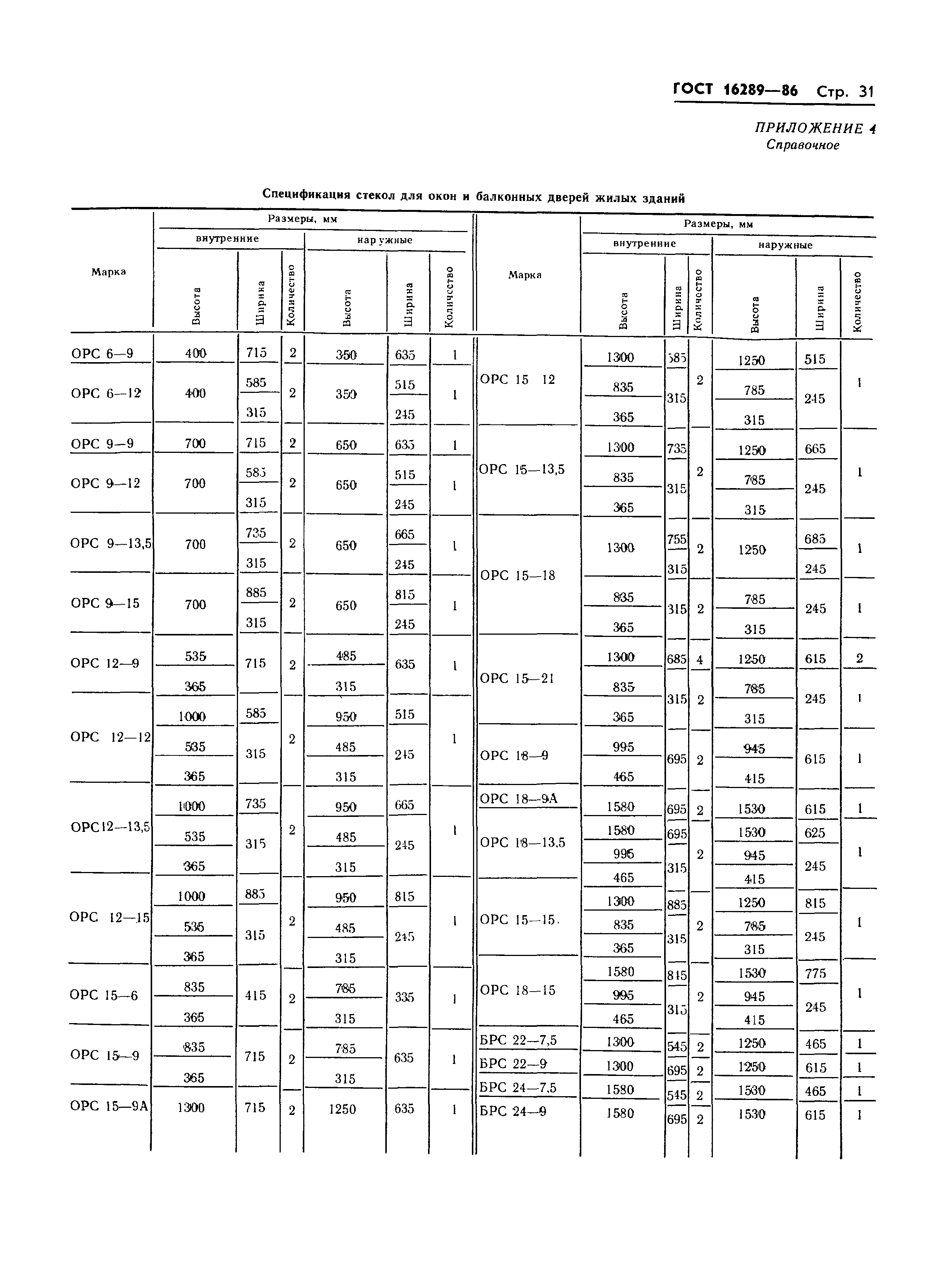
Настоящий стандарт распространяется на деревянные окна и балконные двери с тройным остеклением, предназначаемые для жилых и общественных зданий, а также для вспомогательных зданий и помещений предприятий различных отраслей народного хозяйства
Связи и замены
Заменяющий:
ГОСТ 11214-2003
Взамен:
ГОСТ 16289-80
Описание стандарта
ГОСТ 16289-86 Окна и балконные двери деревянные с тройным остеклением для жилых и общественных зданий. Типы, конструкция и размеры
Страницы стандарта




































