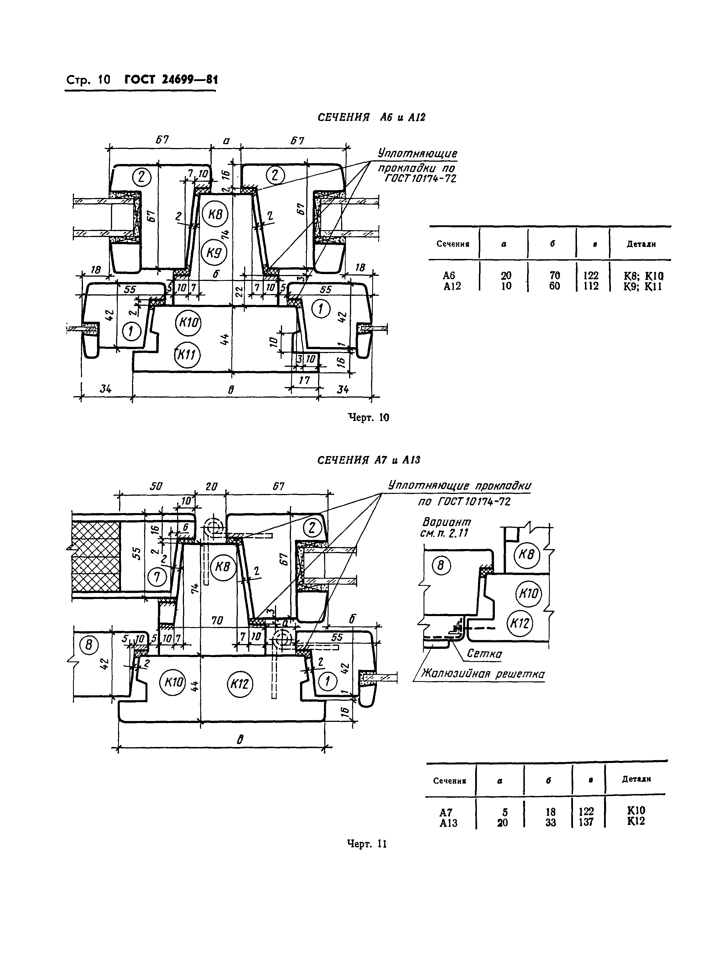
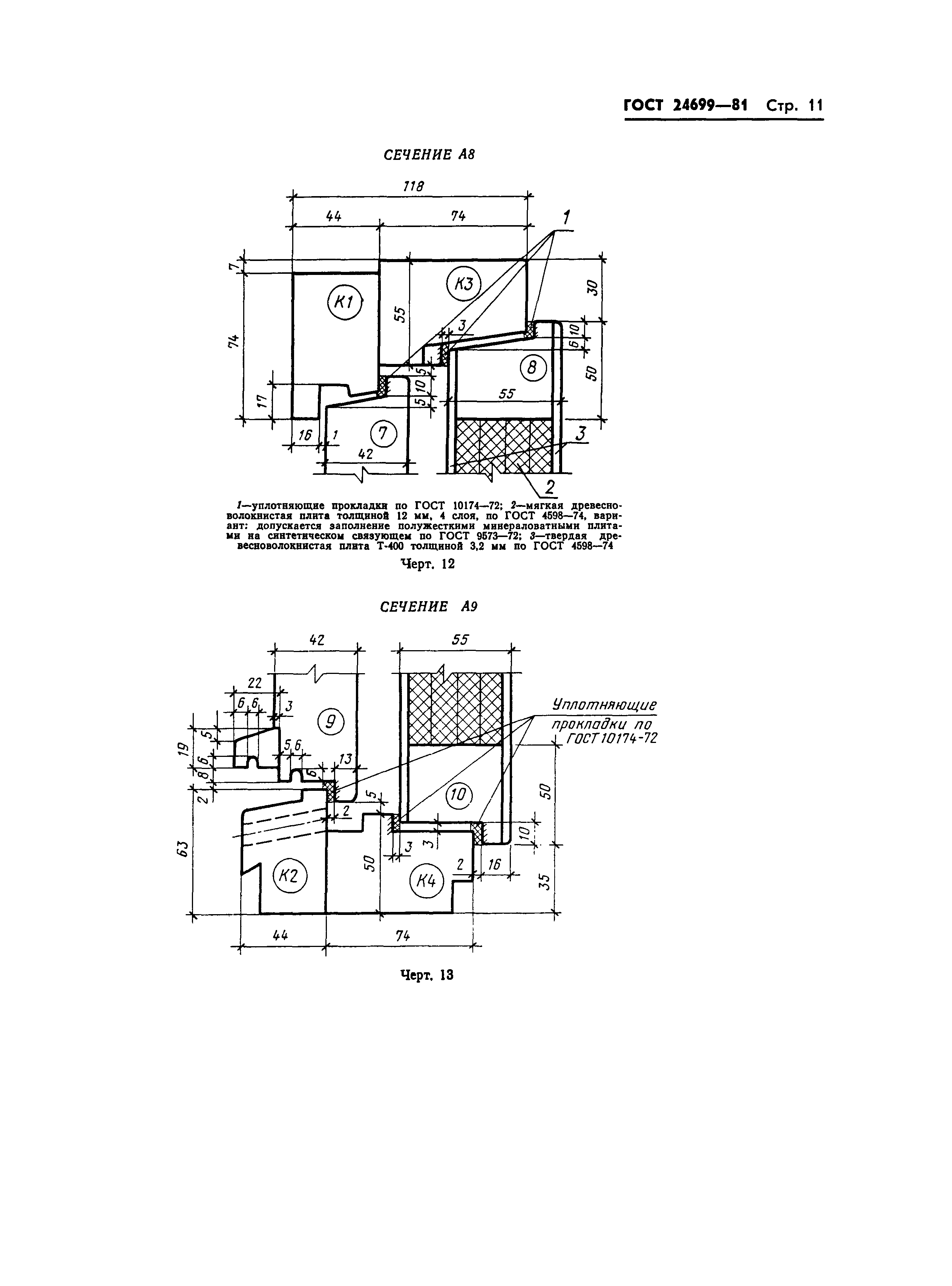
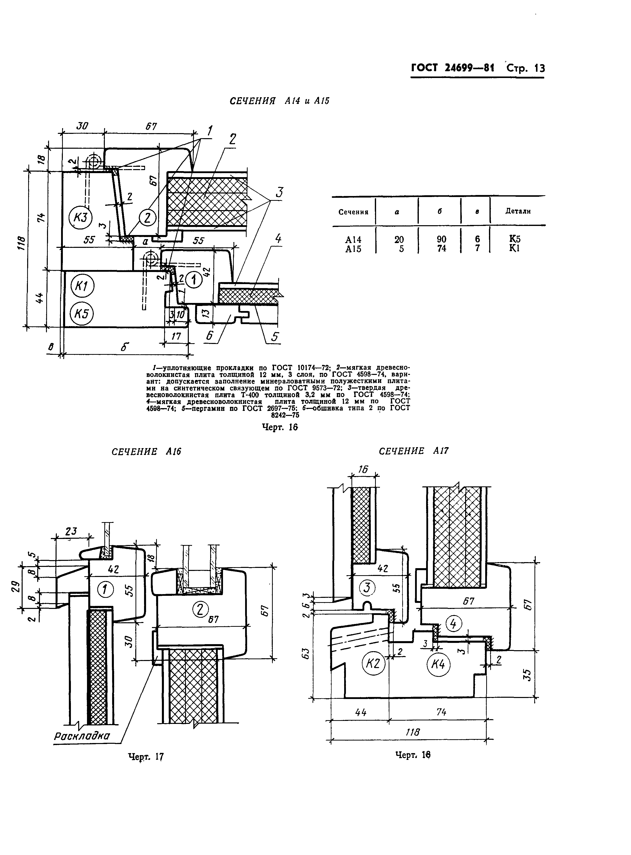
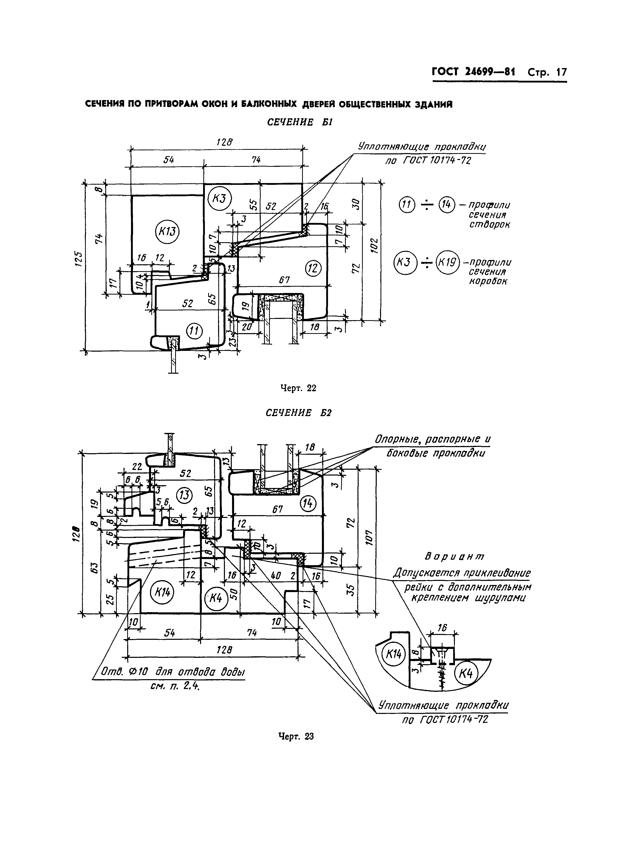
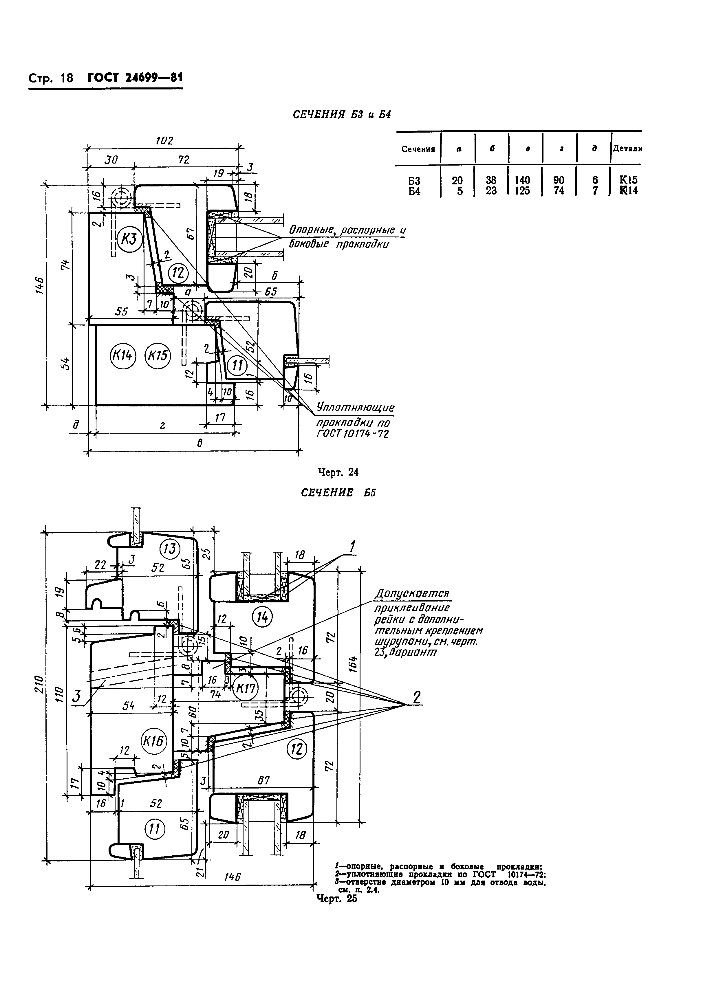
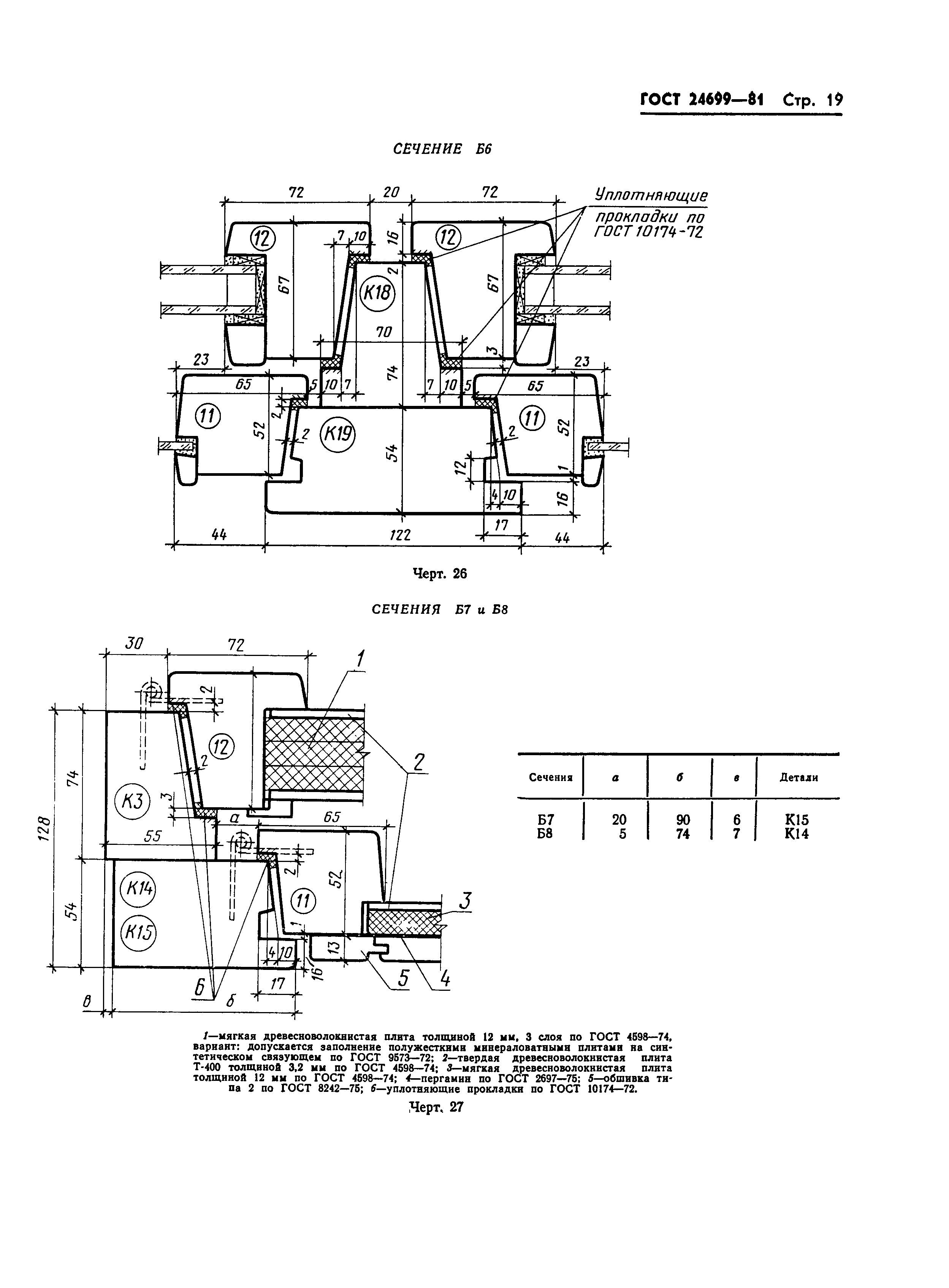
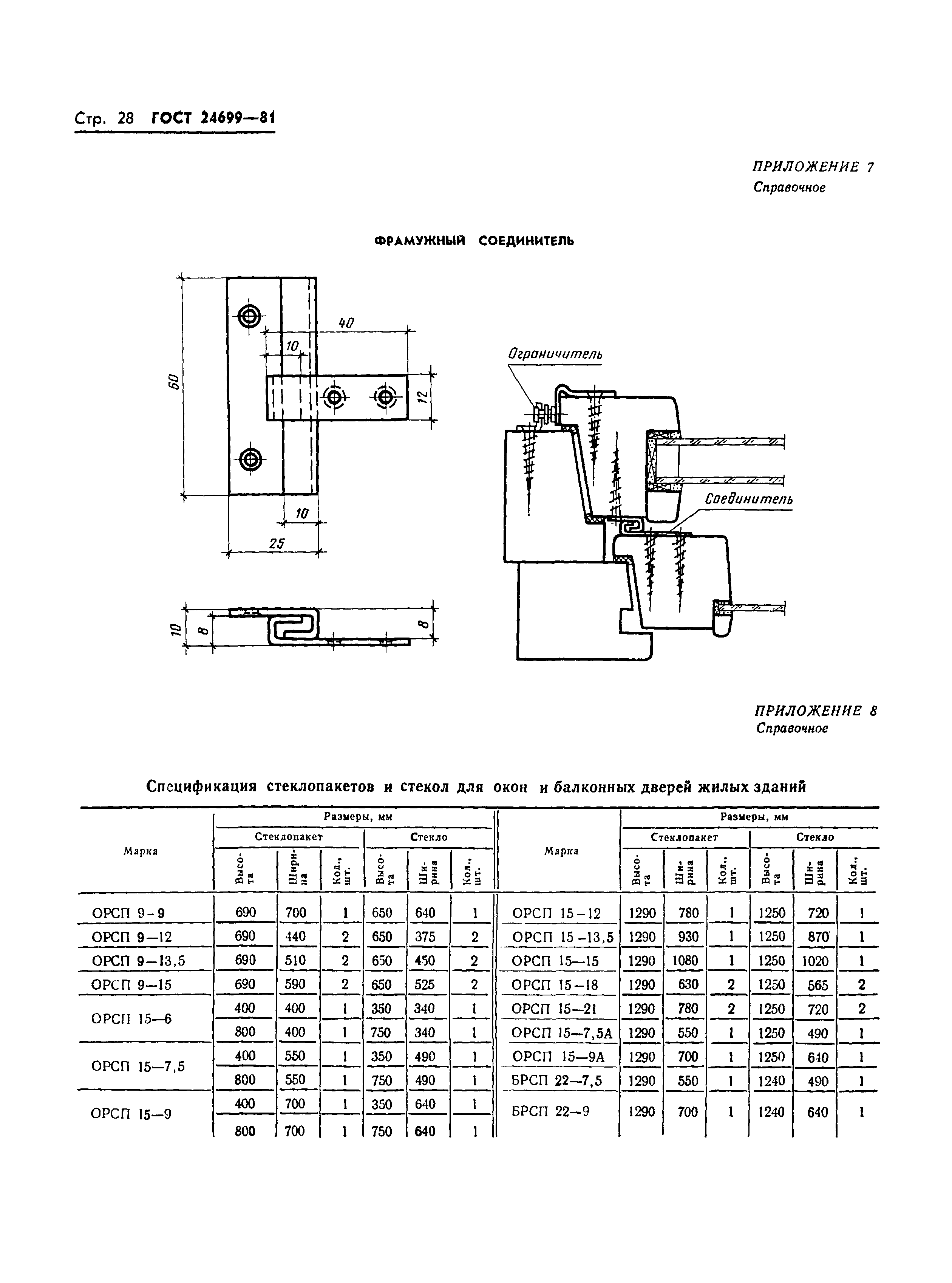
ГОСТ 24699-81 Окна и балконные двери деревянные со стеклопакетами и стеклами для жилых и общественных зданий. Типы, конструкция и размеры
ГОСТ
Скачать ГОСТ в PDF или DOC бесплатно
Основная информация
Обозначение:
ГОСТ 24699-81
Статус:
Заменен
Тип:
ГОСТ
Название русское:
Окна и балконные двери деревянные со стеклопакетами и стеклами для жилых и общественных зданий. Типы, конструкция и размеры
Название английское:
Wooden windows and balcony doors with double glazing units and additional glasses for dwelling and public buildings. Types, structure and dimensions
Даты и сроки
Дата издания:
01-01-81
Дата введения в действие:
01-01-84
Дата завершения срока действия:
03-01-03
Связи и замены
Заменяющий:
ГОСТ 24699-2002
Описание стандарта
ГОСТ 24699-81 Окна и балконные двери деревянные со стеклопакетами и стеклами для жилых и общественных зданий. Типы, конструкция и размеры
Страницы стандарта































