ГОСТ 10629-88 Шпалы железобетонные предварительно напряженные для железных дорог колеи 1520 мм. Технические условия
ГОСТ
Скачать ГОСТ в PDF или DOC бесплатно
Основная информация
Обозначение:
ГОСТ 10629-88
Статус:
Утратил силу в РФ
Тип:
ГОСТ
Название русское:
Шпалы железобетонные предварительно напряженные для железных дорог колеи 1520 мм. Технические условия
Название английское:
Prestressed reinforced concrete sleepers for 1520 mm gauge railways. Specifications
Даты и сроки
Дата издания:
07-01-04
Дата введения в действие:
01-01-90
Дата завершения срока действия:
07-01-12
Применение и описание
Область и условия применения:
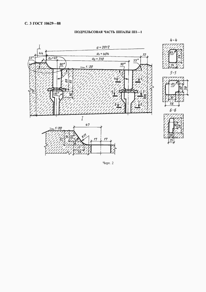
Настоящий стандарт распространяется на железобетонные предварительно напряженные шпалы для железнодорожных путей с рельсовой колеей шириной 1520 мм и рельсами типов Р75, Р65 и Р50, по которым обращается типовой подвижной состав общей сети железных дорог СССР
Связи и замены
Заменяющий:
-
Взамен:
ГОСТ 10629-78
Изменения и переиздания
Список изменений:
№0 от (рег. ) «Дата введения перенесена» №0 от (рег. ) «Поправка к изменению»
Описание стандарта
ГОСТ 10629-88 Шпалы железобетонные предварительно напряженные для железных дорог колеи 1520 мм. Технические условия
Страницы стандарта















