ГОСТ 26067.1-83 Звенья железобетонные безнапорных труб прямоугольного сечения для гидротехнических сооружений. Конструкция и размеры
ГОСТ
Скачать ГОСТ в PDF или DOC бесплатно
Основная информация
Обозначение:
ГОСТ 26067.1-83
Статус:
Утратил силу в РФ
Тип:
ГОСТ
Название русское:
Звенья железобетонные безнапорных труб прямоугольного сечения для гидротехнических сооружений. Конструкция и размеры
Название английское:
Reinforced concrete sections of nonpressure rectangular cross-section pipes for hydroulic structures. Structure and dimensions
Даты и сроки
Дата издания:
06-13-84
Дата введения в действие:
01-01-85
Дата завершения срока действия:
11-01-23
Применение и описание
Область и условия применения:
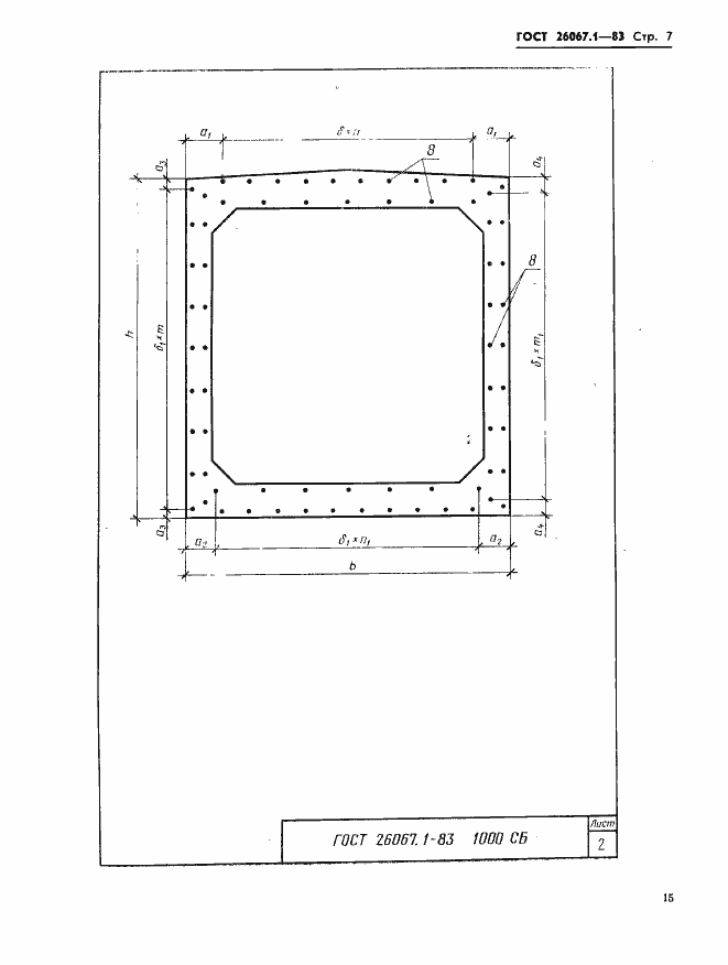
Настоящий стандарт распространяется на железобетонные звенья безнапорных труб прямоугольного сечения, предназначенные для прокладки трубопроводов гидротехнических сооружений, и устанавливает конструкцию звеньев и арматурных изделий к ним
Связи и замены
Заменяющий:
-
Описание стандарта
ГОСТ 26067.1-83 Звенья железобетонные безнапорных труб прямоугольного сечения для гидротехнических сооружений. Конструкция и размеры
Страницы стандарта























