ГОСТ 30974-2002 Соединения угловые деревянных брусчатых и бревенчатых малоэтажных зданий. Классификация, конструкции, размеры
ГОСТ
Скачать ГОСТ в PDF или DOC бесплатно
Основная информация
Обозначение:
ГОСТ 30974-2002
Статус:
Заменен
Тип:
ГОСТ
Название русское:
Соединения угловые деревянных брусчатых и бревенчатых малоэтажных зданий. Классификация, конструкции, размеры
Название английское:
Corner joints of wooden low rise buildings of bars and logs. Classification, structures, dimensions
Даты и сроки
Дата регистрации:
04-24-02
Дата издания:
03-24-03
Дата введения в действие:
03-01-03
Дата завершения срока действия:
06-01-25
Применение и описание
Область и условия применения:
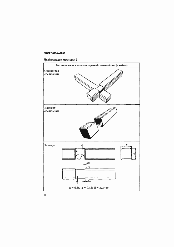
Настоящий стандарт распространяется на угловые и Т-образные соединения брусчатых и бревенчатых стен малоэтажных зданий различного назначения. Требования стандарта распространяются на угловые соединения заводского (например, угловые соединения типовых деревянных домов, бань и др.) и построечного изготовления (в том числе, при реставрационных работах). В стандарте приведены также конструкции соединений брусьев и бревен по длине. Стандарт может быть использован для целей сертификации
Связи и замены
Заменяющий:
ГОСТ З0974-2024
Описание стандарта
ГОСТ 30974-2002 Соединения угловые деревянных брусчатых и бревенчатых малоэтажных зданий. Классификация, конструкции, размеры
Страницы стандарта




























